Gefunden auf ImmoBucket
Weiter zu Immoscout24
2490 ·
Ebenfurth
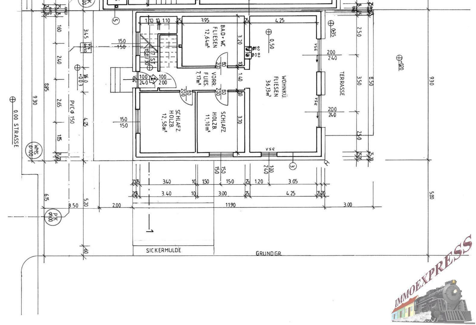
Tolle Eigentumswohnung im EG in Ebenfurth
350.000€
200
m²
·
3
Zimmer
Verlauf
Zuerst gesehen:
over 1 year ago
auf
Immoscout24
Gefunden
over 1 year ago
auf
Immoscout24
gelöscht
Gefunden
about 1 year ago
auf
Immoscout24
Gefunden
over 1 year ago
auf
Willhaben
Ähnliche Anzeigen
2490 ·
Ebenfurth
199.000€
3.618€
pro m²
55
m²
·
2
Zimmer
2490 ·
Ebenfurth
124.000€
2.385€
pro m²
52
m²
·
2
Zimmer
2490 ·
Ebenfurth
124.900€
2.082€
pro m²
60
m²
·
3
Zimmer
2490 ·
Ebenfurth
319.000€
4.038€
pro m²
79
m²
·
3
Zimmer
2490 ·
Ebenfurth
279.000€
3.207€
pro m²
87
m²
·
3
Zimmer
2490 ·
Ebenfurth
175.000€
2.917€
pro m²
60
m²
·
2
Zimmer