6020 · Innsbruck

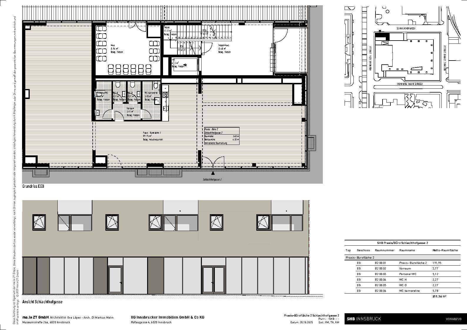
Vielseitig nutzbare Geschäftsfläche in nähe des Kletterzentrums

Kein Preis
192 · 3 Zimmer
otherotherother

Verlauf

Zuerst gesehen: 7 months ago auf Immoscout24
Gefunden about 1 month ago auf Immoscout24
Gefunden 7 months ago auf Willhabengelöscht
Gefunden 7 months ago auf Immoscout24gelöscht
Gefunden 5 months ago auf Willhabengelöscht
Gefunden about 1 month ago auf Willhaben
Gefunden 5 months ago auf Immoscout24gelöscht

Ähnliche Anzeigen