Gefunden auf ImmoBucket
Weiter zu Immoscout24
2182 ·
Palterndorf
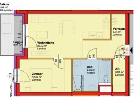
Top W1/02-Erstbezug-EG-2 Zimmer-Eigengarten-1 Pkw Stellplatz im Freien-Miete-Barrierfreies Wohnen
617€
52
m²
·
2
Zimmer
Verlauf
Zuerst gesehen:
8 months ago
auf
Immoscout24
Gefunden
6 months ago
auf
Willhaben
gelöscht
Gefunden
8 months ago
auf
Willhaben
gelöscht
Gefunden
8 months ago
auf
Immoscout24
Gefunden
3 months ago
auf
Immoscout24
gelöscht
Ähnliche Anzeigen
2182 ·
Palterndorf
698€
12€
pro m²
56
m²
·
2
Zimmer
2182 ·
Palterndorf
617€
12€
pro m²
52
m²
·
2
Zimmer
2182 ·
Palterndorf
621€
12€
pro m²
53
m²
·
2
Zimmer
2182 ·
Palterndorf
697,67€
12€
pro m²
56
m²
·
2
Zimmer
2182 ·
Palterndorf
616,86€
12€
pro m²
52
m²
·
2
Zimmer
2182 ·
Palterndorf
621,31€
12€
pro m²
53
m²
·
2
Zimmer