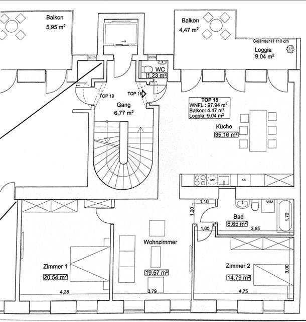
1120 · Wien

ERSTBEZUG: wunderschöne 4 Zi.- Familienwohnung mit sehr großem Balkon

649.000€
98 · 4 Zimmer
otherotherotherotherotherotherother

Verlauf

Zuerst gesehen: 7 months ago auf Immoscout24
Gefunden 6 months ago auf Willhabengelöscht
Gefunden 6 months ago auf Willhabengelöscht
Gefunden 6 months ago auf Immoscout24gelöscht
Gefunden 4 months ago auf Willhabengelöscht
Gefunden 6 months ago auf Immoscout24gelöscht
Gefunden 3 months ago auf Willhabengelöscht
Gefunden 6 months ago auf Immoscout24gelöscht
Gefunden 5 months ago auf Willhabengelöscht
Gefunden 5 months ago auf Willhabengelöscht
Gefunden 5 months ago auf Immoscout24gelöscht
Gefunden 4 months ago auf Willhabengelöscht
Gefunden 3 months ago auf Willhabengelöscht
Gefunden about 1 month ago auf Immoscout24

Ähnliche Anzeigen