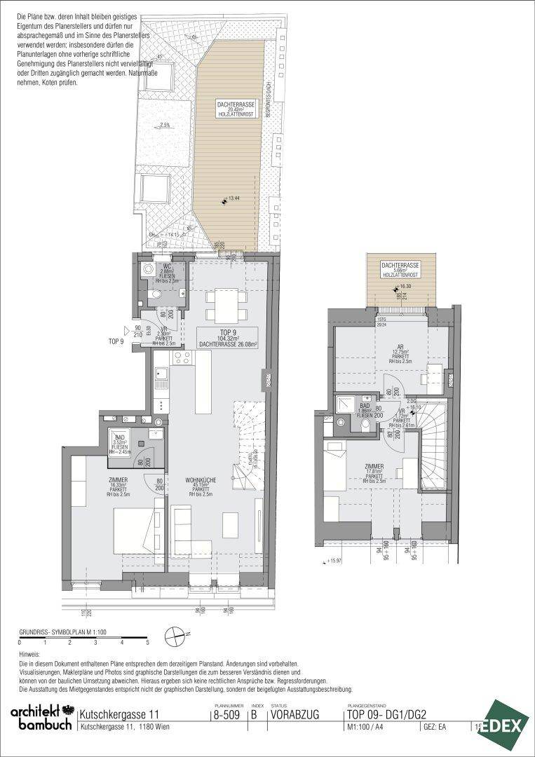
1180 · Wien

Am Kutschkermarkt | Außergewöhnliche 4-Zimmer-Dachgeschoßwohnung mit 2 Terrassen

1.280.000€
104 · 4 Zimmer
otherotherotherotherotherotherotherotherotherother

Verlauf

Zuerst gesehen: about 2 months ago auf Immoscout24
Gefunden 12 days ago auf Immoscout24
Gefunden 29 days ago auf Willhabengelöscht
Gefunden about 1 month ago auf Willhabengelöscht
Gefunden about 1 month ago auf Willhabengelöscht
Gefunden 11 days ago auf Willhaben
Gefunden about 1 month ago auf Immoscout24gelöscht
Gefunden about 1 month ago auf Immoscout24gelöscht
Gefunden 23 days ago auf Willhabengelöscht

Ähnliche Anzeigen