Gefunden auf ImmoBucket
Weiter zu Immoscout24
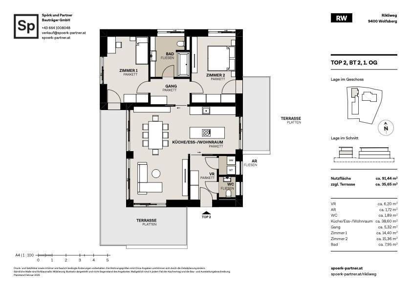
9400 ·
Wolfsberg
Ihr Wohntraum im Lavanttal - das neue Wohnbauprojekt am Rikliweg
480.000€
91
m²
·
3
Zimmer
Verlauf
Zuerst gesehen:
about 1 month ago
auf
Immoscout24
Gefunden
about 1 month ago
auf
Immoscout24
Ähnliche Anzeigen
9400 ·
Wolfsberg
189.000€
3.316€
pro m²
57
m²
·
2
Zimmer
9400 ·
Wolfsberg
175.000€
2.244€
pro m²
78
m²
·
3
Zimmer
9400 ·
Wolfsberg
324.000€
3.411€
pro m²
95
m²
·
4
Zimmer
9400 ·
Wolfsberg
147.000€
1.885€
pro m²
78
m²
·
3
Zimmer
9400 ·
Wolfsberg
3.470.000€
3.010€
pro m²
1153
m²
·
0
Zimmer
9400 ·
Wolfsberg
119.000€
2.767€
pro m²
43
m²
·
2
Zimmer