1050 · Wien,Margareten

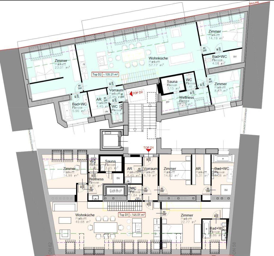
Baubewilligter Rohdachboden in zentraler Lage in Wien.

849.000€
279 · Zimmer
otherotherotherotherotherotherotherotherotherother

Verlauf

Zuerst gesehen: 5 months ago auf Immoscout24
Gefunden 4 months ago auf Willhabengelöscht
Gefunden 5 months ago auf Immoscout24
Gefunden about 1 month ago auf Willhabengelöscht
Gefunden about 1 month ago auf Willhaben
Gefunden about 1 month ago auf Immoscout24
Gefunden about 1 month ago auf Immoscout24gelöscht

Ähnliche Anzeigen