Gefunden auf ImmoBucket
Weiter zu Immoscout24
6330 ·
Kufstein
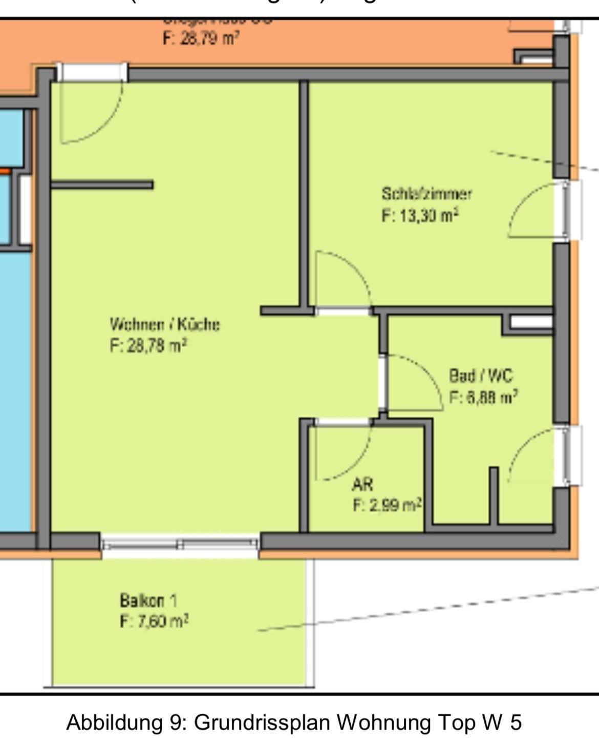
Moderne 2 Zimmer Neubauwohnung mit TG und Balkon in Kufstein
1.350€
53
m²
·
2
Zimmer
Verlauf
Zuerst gesehen:
15 days ago
auf
Immoscout24
Gefunden
9 days ago
auf
Immoscout24
Ähnliche Anzeigen
6330 ·
Kufstein
720€
24€
pro m²
30
m²
·
1
Zimmer
6330 ·
Kufstein
796€
25€
pro m²
32
m²
·
1
Zimmer
6330 ·
Kufstein
1.400€
18€
pro m²
77
m²
·
3
Zimmer
6330 ·
Kufstein
880€
44€
pro m²
20
m²
·
1
Zimmer
6330 ·
Kufstein
650€
22€
pro m²
30
m²
·
1
Zimmer
6330 ·
Kufstein
2.266,28€
28€
pro m²
81
m²
·
Zimmer