Gefunden auf ImmoBucket
Weiter zu Immoscout24
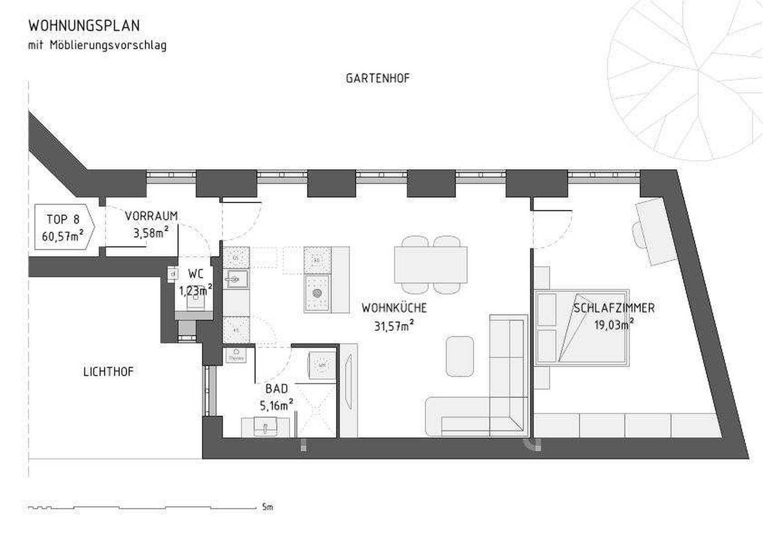
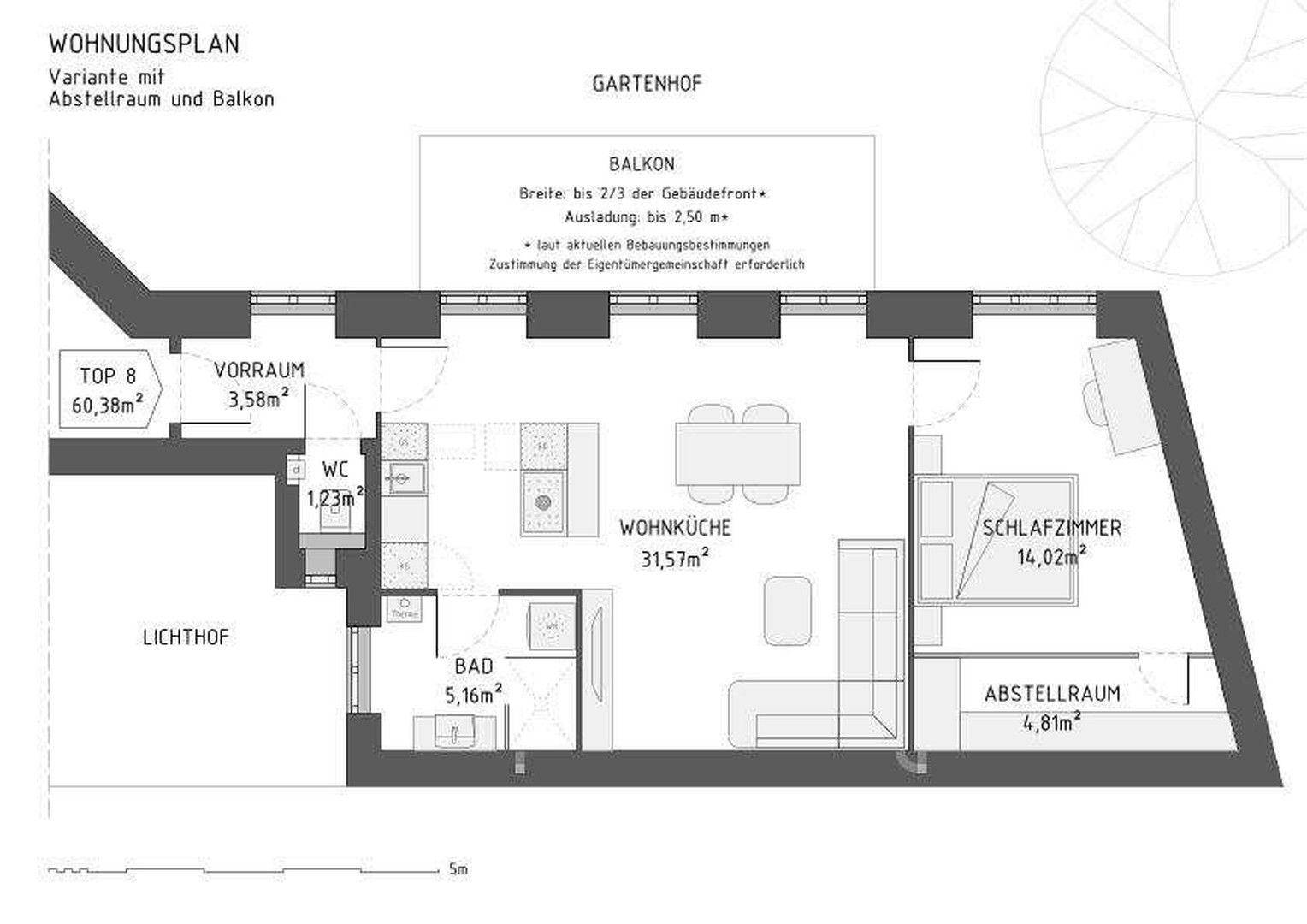
1020 ·
Wien
Altbau
490.000€
61
m²
·
2
Zimmer
Verlauf
Zuerst gesehen:
19 days ago
auf
Immoscout24
Gefunden
12 days ago
auf
Immoscout24
Ähnliche Anzeigen
1020 ·
Wien, 02. Bezirk, Leopoldstadt
349.000€
4.106€
pro m²
85
m²
·
3
Zimmer
1020 ·
Wien, 02. Bezirk, Leopoldstadt
290.000€
5.000€
pro m²
58
m²
·
2
Zimmer
1020 ·
Wien, 02. Bezirk, Leopoldstadt
315.000€
€
m²
·
0
Zimmer
1020 ·
Wien, 02. Bezirk, Leopoldstadt
157.000€
€
m²
·
0
Zimmer
1020 ·
Wien, 02. Bezirk, Leopoldstadt
99.000€
1.547€
pro m²
64
m²
·
Zimmer
1020 ·
Wien, 02. Bezirk, Leopoldstadt
2.890.000€
20.643€
pro m²
140
m²
·
4
Zimmer