Gefunden auf ImmoBucket
Weiter zu Immoscout24
1030 ·
Wien
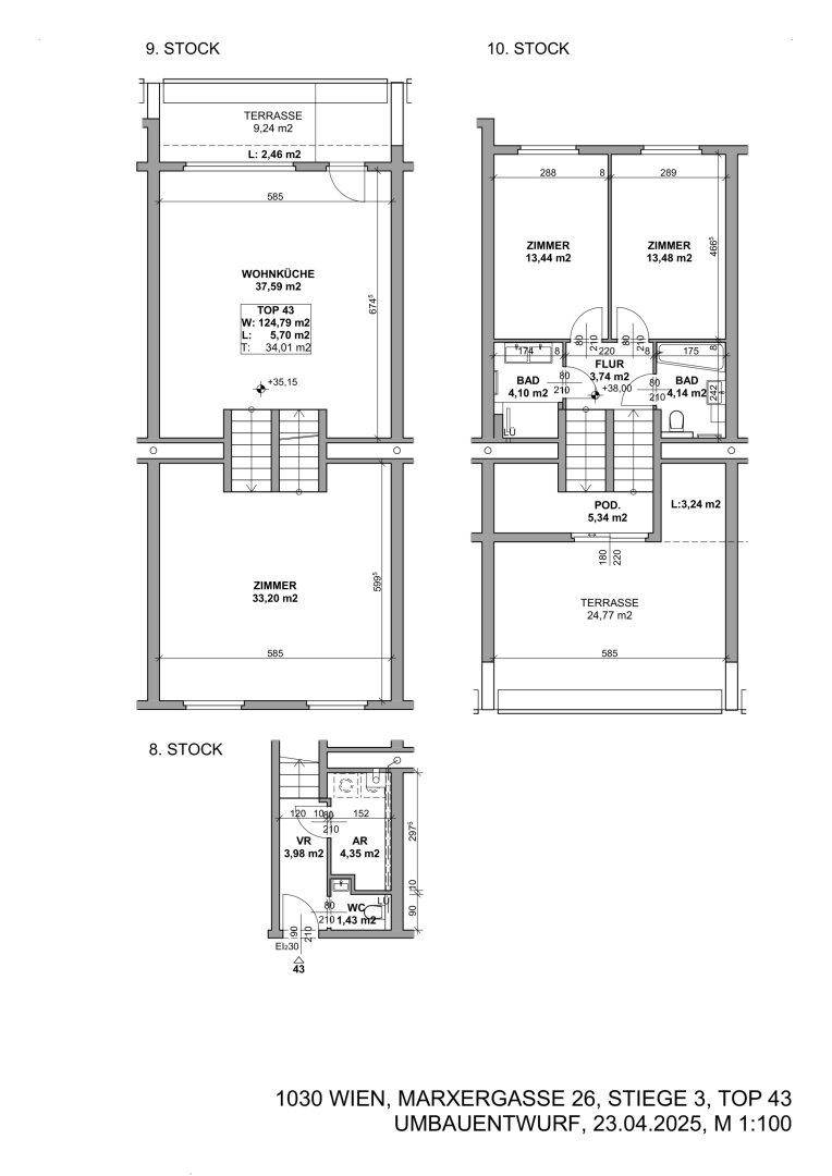
Generalsanierte Eigentumswohnung auf drei Ebenen mit zwei Terrassen - Gegenüber Sofiensäle
1.085.000€
125
m²
·
4
Zimmer
Verlauf
Zuerst gesehen:
4 months ago
auf
Immoscout24
Gefunden
25 days ago
auf
Immoscout24
Gefunden
4 months ago
auf
Willhaben
Ähnliche Anzeigen
1030 ·
Wien
445.000€
5.000€
pro m²
89
m²
·
3
Zimmer
1030 ·
Wien
210.000€
6.774€
pro m²
31
m²
·
1
Zimmer
1030 ·
Wien,Landstraße
620.000€
5.536€
pro m²
112
m²
·
3
Zimmer
1030 ·
Wien,Landstraße
749.000€
5.467€
pro m²
137
m²
·
5
Zimmer
1030 ·
Wien
1.000.000€
11.111€
pro m²
90
m²
·
4
Zimmer
1030 ·
Wien
No price
€
m²
·
Zimmer