Gefunden auf ImmoBucket
Weiter zu Immoscout24
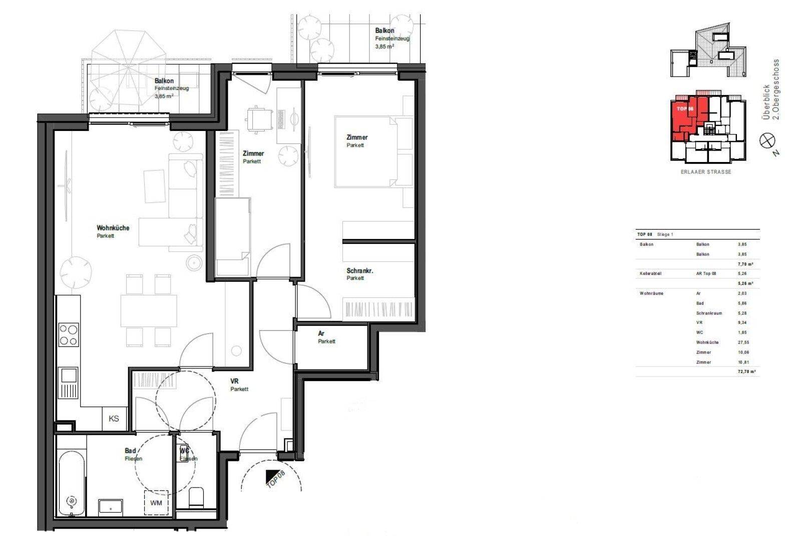
1230 ·
Wien
Traumhafte Familienwohnung I 2 Balkone I Garage
530.000€
73
m²
·
3
Zimmer
Verlauf
Zuerst gesehen:
4 months ago
auf
Immoscout24
Gefunden
25 days ago
auf
Immoscout24
Gefunden
4 months ago
auf
Willhaben
Ähnliche Anzeigen
1230 ·
Wien
199.000€
5.686€
pro m²
35
m²
·
Zimmer
1230 ·
Wien, 23. Bezirk, Liesing
288.730€
€
m²
·
0
Zimmer
1230 ·
Wien
No price
€
m²
·
Zimmer
1230 ·
Wien
288.730€
6.715€
pro m²
43
m²
·
2
Zimmer
1230 ·
Wien
482.000€
6.603€
pro m²
73
m²
·
2
Zimmer
1230 ·
Wien
643.375€
6.308€
pro m²
102
m²
·
3
Zimmer