Gefunden auf ImmoBucket
Weiter zu Immoscout24
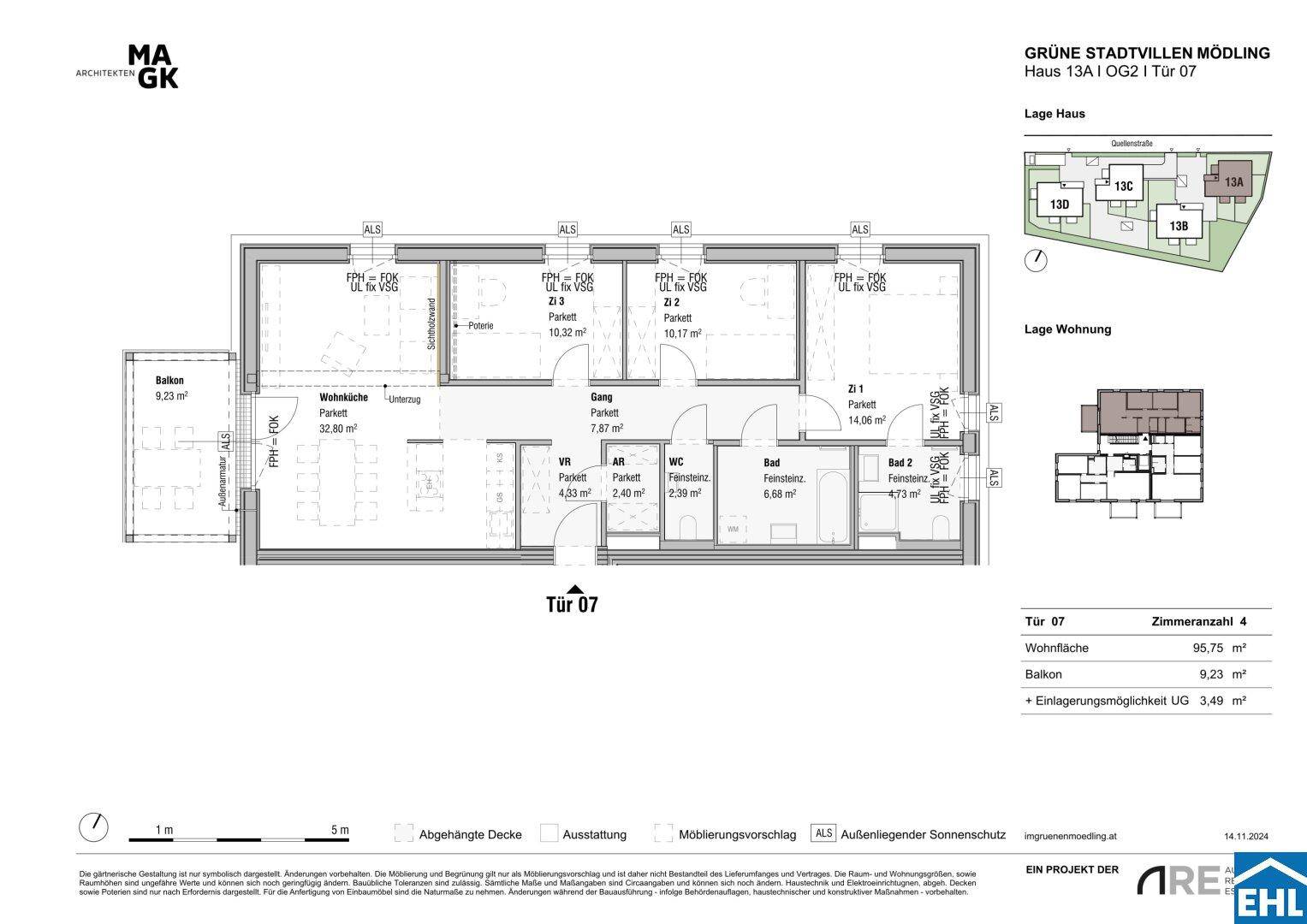
2340 ·
Mödling
Im Grünen Mödling – Grüne Stadtvillen
685.000€
96
m²
·
4
Zimmer
Verlauf
Zuerst gesehen:
2 months ago
auf
Immoscout24
Gefunden
25 days ago
auf
Immoscout24
Gefunden
2 months ago
auf
Willhaben
Gefunden
6 days ago
auf
Willhaben
Gefunden
6 days ago
auf
Immoscout24
gelöscht
Ähnliche Anzeigen
2340 ·
Mödling
497.000€
6.372€
pro m²
78
m²
·
3
Zimmer
2340 ·
Mödling
229.000€
4.164€
pro m²
55
m²
·
3
Zimmer
2340 ·
Mödling
85.000€
3.400€
pro m²
25
m²
·
1
Zimmer
2340 ·
Mödling
350.000€
2.823€
pro m²
124
m²
·
6
Zimmer
2340 ·
Mödling
525.000€
5.707€
pro m²
92
m²
·
3
Zimmer
2340 ·
Mödling
398.000€
3.134€
pro m²
127
m²
·
4
Zimmer