Gefunden auf ImmoBucket
Weiter zu Immoscout24
2340 ·
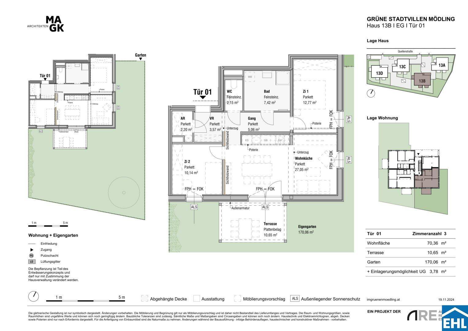
Mödling
Im Grünen Mödling – Grüne Stadtvillen
519.500€
70
m²
·
3
Zimmer
Verlauf
Zuerst gesehen:
about 2 months ago
auf
Immoscout24
Gefunden
10 days ago
auf
Immoscout24
Gefunden
about 2 months ago
auf
Willhaben
gelöscht
Ähnliche Anzeigen
2340 ·
Mödling
334.000€
3.093€
pro m²
108
m²
·
4
Zimmer
2340 ·
Mödling
539.000€
5.233€
pro m²
103
m²
·
4
Zimmer
2340 ·
Mödling
229.000€
4.089€
pro m²
56
m²
·
3
Zimmer
2340 ·
Mödling
239.000€
€
m²
·
0
Zimmer
2340 ·
Mödling
279.000€
3.135€
pro m²
89
m²
·
3
Zimmer
2340 ·
Mödling
239.000€
€
m²
·
0
Zimmer