8054 · Graz

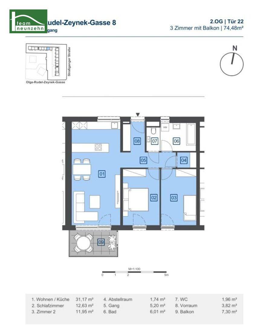
Wohnen mit Qualität & Stil – Olga-Rudel-Zeynek-Gasse 4–8

913€
82 · 3 Zimmer
otherotherotherotherotherotherotherotherotherotherotherotherother

Verlauf

Zuerst gesehen: 2 months ago auf Immoscout24
Gefunden 2 months ago auf Willhabengelöscht
Gefunden 25 days ago auf Immoscout24
Gefunden about 2 months ago auf Willhaben
Gefunden 23 days ago auf Willhaben
Gefunden about 2 months ago auf Willhaben
Gefunden 23 days ago auf Immoscout24
Gefunden 25 days ago auf Immoscout24

Ähnliche Anzeigen