Gefunden auf ImmoBucket
Weiter zu Immoscout24
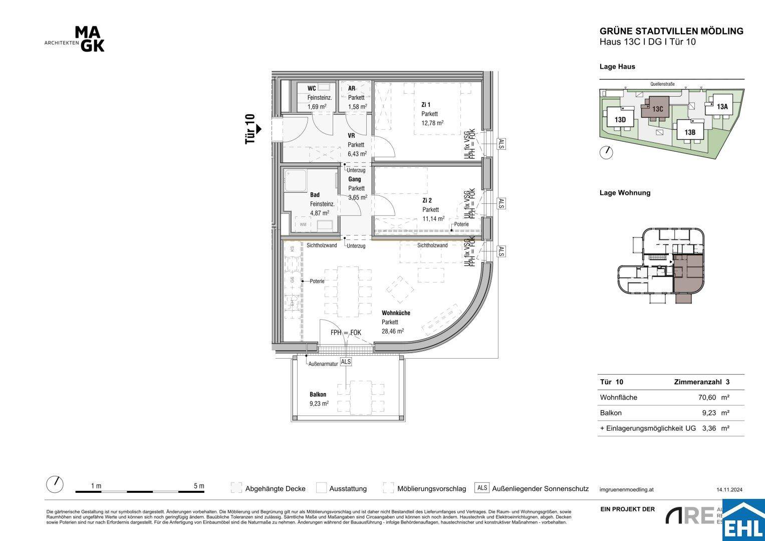
2340 ·
Mödling
Im Grünen Mödling – Grüne Stadtvillen
570.000€
71
m²
·
3
Zimmer
Verlauf
Zuerst gesehen:
about 2 months ago
auf
Immoscout24
Gefunden
22 days ago
auf
Immoscout24
Gefunden
about 2 months ago
auf
Willhaben
Gefunden
2 days ago
auf
Willhaben
Gefunden
22 days ago
auf
Immoscout24
Gefunden
about 1 month ago
auf
Willhaben
Gefunden
2 days ago
auf
Immoscout24
Ähnliche Anzeigen
2340 ·
Mödling
No price
€
m²
·
Zimmer
2340 ·
Mödling
497.000€
6.372€
pro m²
78
m²
·
3
Zimmer
2340 ·
Mödling
229.000€
4.164€
pro m²
55
m²
·
3
Zimmer
2340 ·
Mödling
455.000€
4.375€
pro m²
104
m²
·
3
Zimmer
2340 ·
Mödling
85.000€
3.400€
pro m²
25
m²
·
1
Zimmer
2340 ·
Mödling
350.000€
2.823€
pro m²
124
m²
·
6
Zimmer