Gefunden auf ImmoBucket
Weiter zu Immoscout24
2380 ·
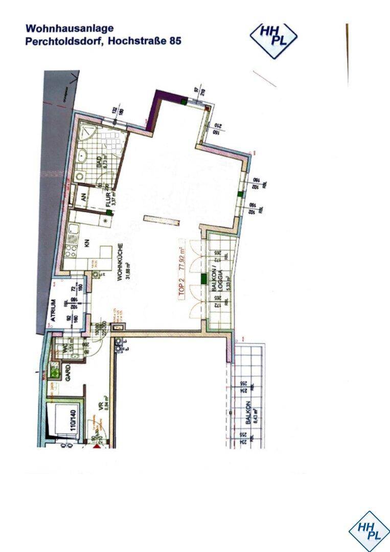
Perchtoldsdorf
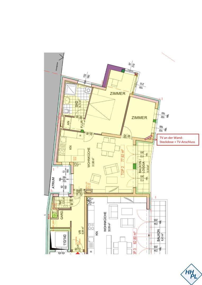
Gemütliche 2-3 Zimmer Wohnung inkl. 2 Garagenstellplätze
375.000€
78
m²
·
3
Zimmer
Verlauf
Zuerst gesehen:
about 1 month ago
auf
Immoscout24
Gefunden
10 days ago
auf
Immoscout24
Gefunden
about 1 month ago
auf
Willhaben
Ähnliche Anzeigen
2380 ·
Perchtoldsdorf
198.000€
3.194€
pro m²
62
m²
·
3
Zimmer
2380 ·
Perchtoldsdorf
3.699.000€
1.529€
pro m²
2419
m²
·
Zimmer
2380 ·
Perchtoldsdorf
549.000€
4.575€
pro m²
120
m²
·
5
Zimmer
2380 ·
Perchtoldsdorf
319.000€
4.090€
pro m²
78
m²
·
Zimmer
2380 ·
Perchtoldsdorf
1.160.000€
11.262€
pro m²
103
m²
·
3
Zimmer
2380 ·
Perchtoldsdorf
1.045.000€
8.038€
pro m²
130
m²
·
5
Zimmer