Gefunden auf ImmoBucket
Weiter zu Immoscout24
5280 ·
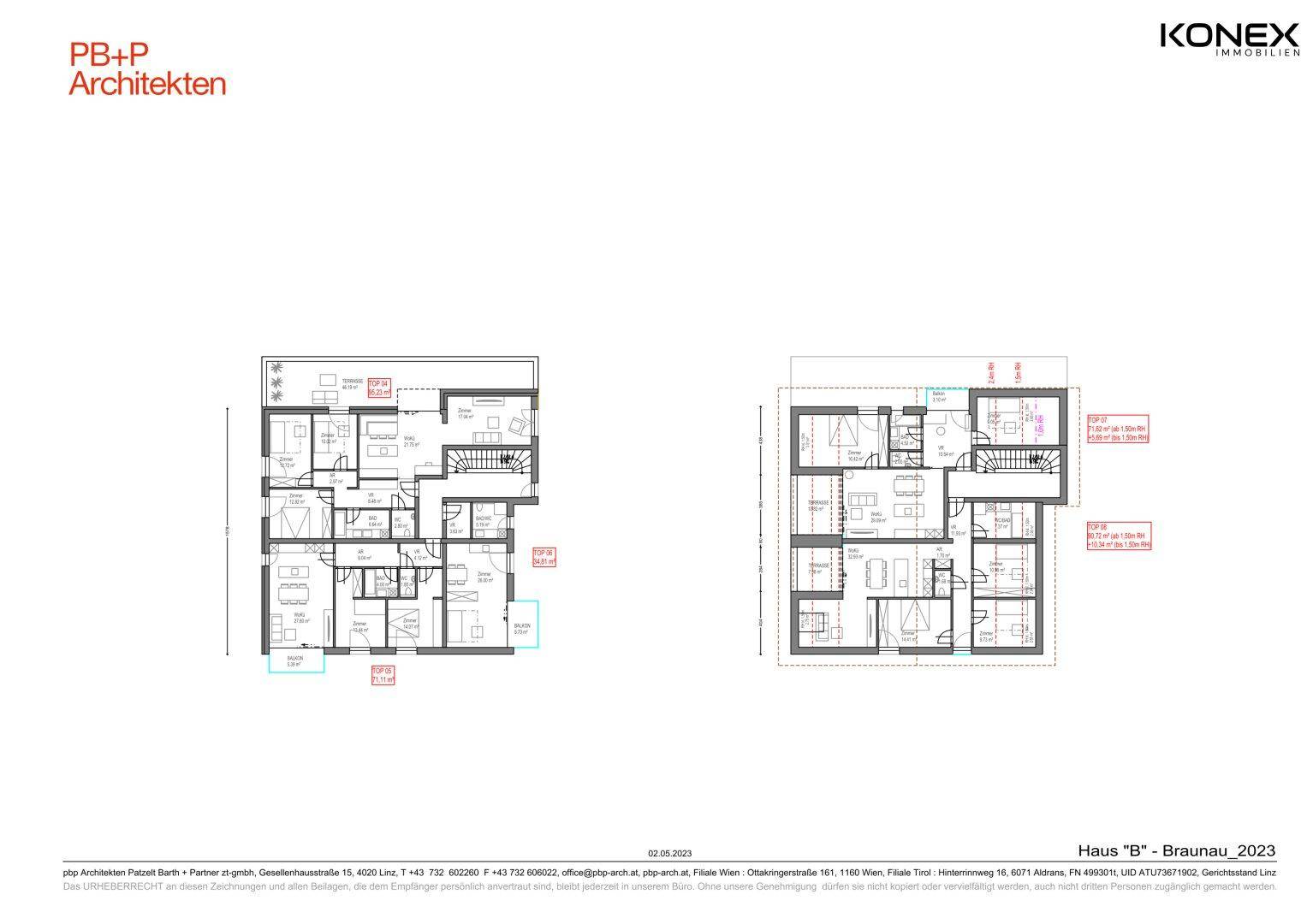
Braunau am Inn
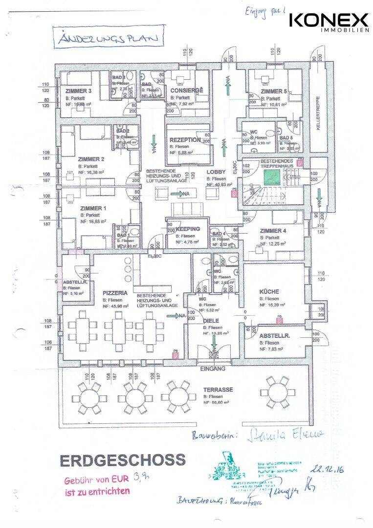
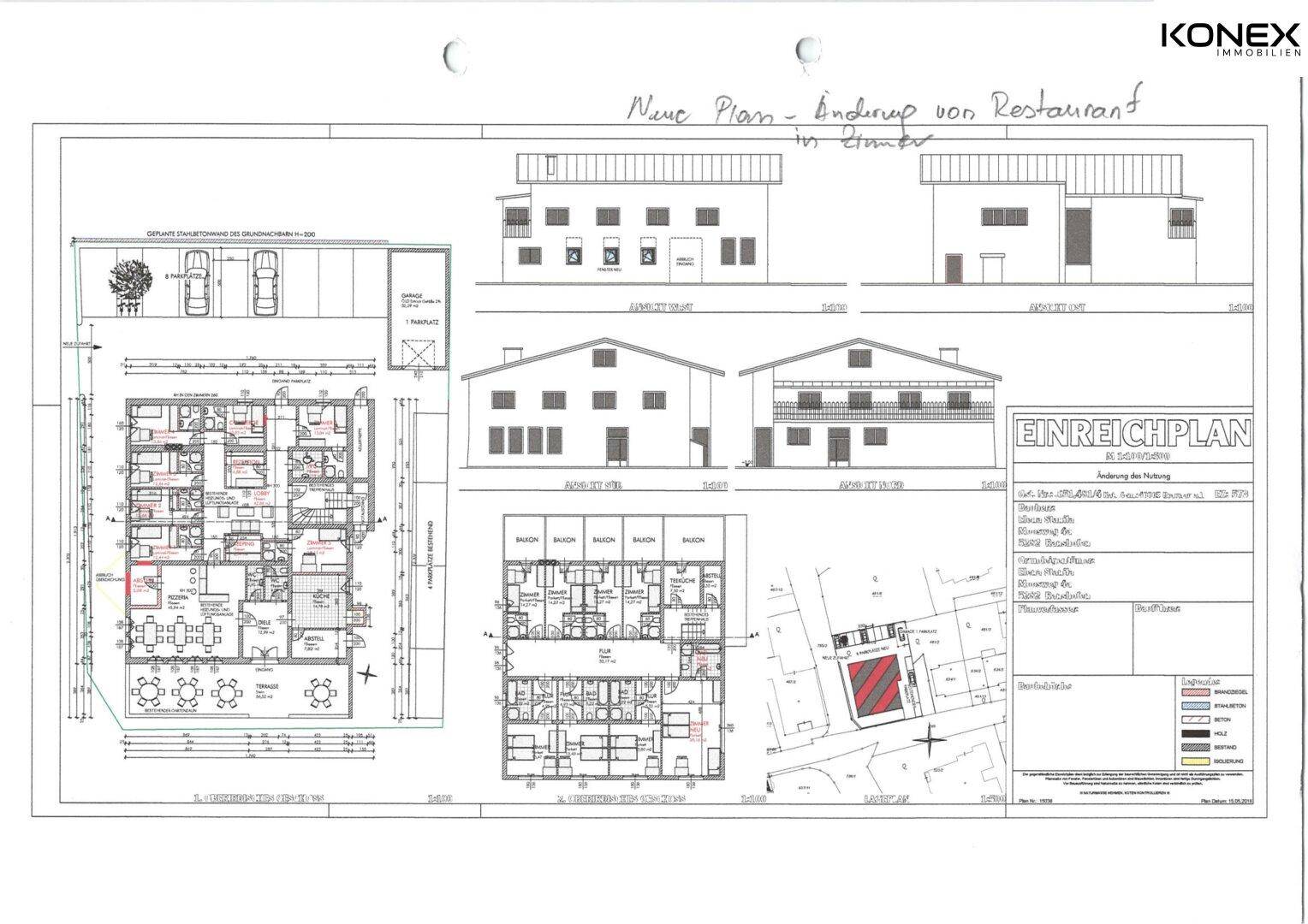
Pension mit Gastronomie & Entwicklungspotenzial in zentraler Lage von Braunau am Inn – zu verkaufen
Kein Preis
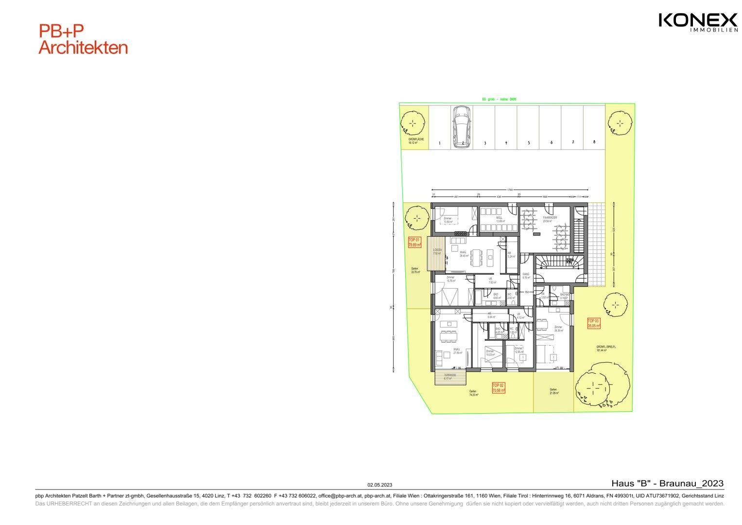
643
m²
·
20
Zimmer
Verlauf
Zuerst gesehen:
about 1 month ago
auf
Immoscout24
Gefunden
10 days ago
auf
Immoscout24
Gefunden
about 1 month ago
auf
Willhaben
Ähnliche Anzeigen
5280 ·
Braunau Neustadt
89.000€
2.543€
pro m²
35
m²
·
0
Zimmer
5280 ·
Braunau am Inn
137.000€
5.708€
pro m²
24
m²
·
Zimmer
5280 ·
Braunau am Inn
229.500€
2.207€
pro m²
104
m²
·
4
Zimmer
5280 ·
Braunau am Inn
199.000€
2.551€
pro m²
78
m²
·
3
Zimmer
5280 ·
Braunau am Inn
119.000€
2.288€
pro m²
52
m²
·
2
Zimmer
5280 ·
Braunau am Inn
89.000€
2.781€
pro m²
32
m²
·
0
Zimmer