Gefunden auf ImmoBucket
Gelöscht
7312 ·
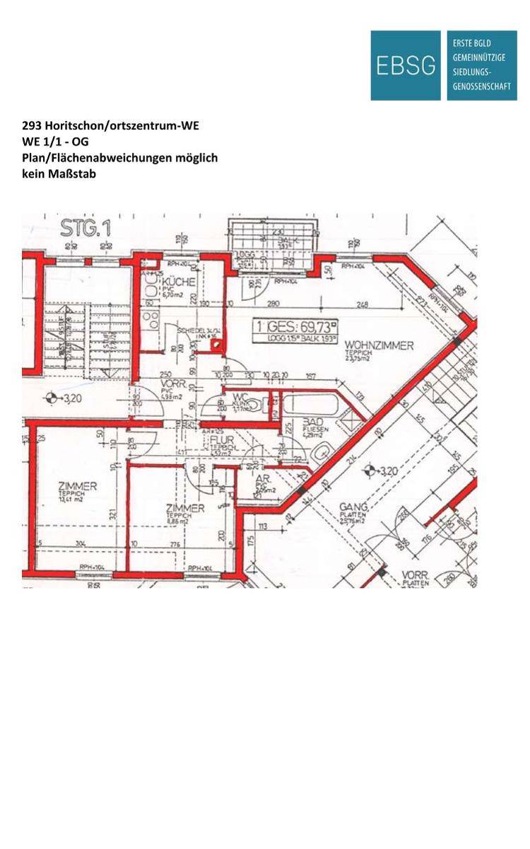
Horitschon
3-Zimmerwohnung im 1. OG mit Loggia
548€
71
m²
·
3
Zimmer
Verlauf
Zuerst gesehen:
about 2 months ago
auf
Immoscout24
Gefunden
19 days ago
auf
Immoscout24
gelöscht
Gefunden
about 1 month ago
auf
Willhaben
gelöscht
Ähnliche Anzeigen
7312 ·
Horitschon
955€
10€
pro m²
100
m²
·
4
Zimmer
7312 ·
Unterpetersdorf
765,29€
8€
pro m²
97
m²
·
4
Zimmer