Gefunden auf ImmoBucket
Weiter zu Immoscout24
2860 ·
Kirchschlag in der Buckligen W
Modernisierte Dachgeschosswohnung mit Balkon & Blick auf die Burgruine Kirchschlag
105.000€
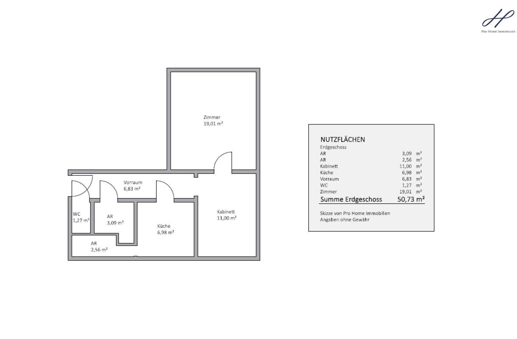
51
m²
·
2
Zimmer
Verlauf
Zuerst gesehen:
2 months ago
auf
Immoscout24
Gefunden
2 months ago
auf
Immoscout24
Gefunden
2 months ago
auf
Willhaben
Ähnliche Anzeigen
2860 ·
Kirchschlag in der Buckligen Welt
106.900€
1.697€
pro m²
63
m²
·
2
Zimmer
2860 ·
Kirchschlag in der Buckligen Welt
111.000€
1.306€
pro m²
85
m²
·
3
Zimmer
2860 ·
Kirchschlag
141.000€
2.074€
pro m²
68
m²
·
4
Zimmer
2860 ·
Kirchschlag
171.000€
2.342€
pro m²
73
m²
·
4
Zimmer
2860 ·
Kirchschlag in der Buckligen Welt
115.000€
1.533€
pro m²
75
m²
·
Zimmer
2860 ·
Kirchschlag in der Buckligen Welt
105.000€
2.059€
pro m²
51
m²
·
2
Zimmer