Gefunden auf ImmoBucket
Weiter zu Immoscout24
1220 ·
Wien
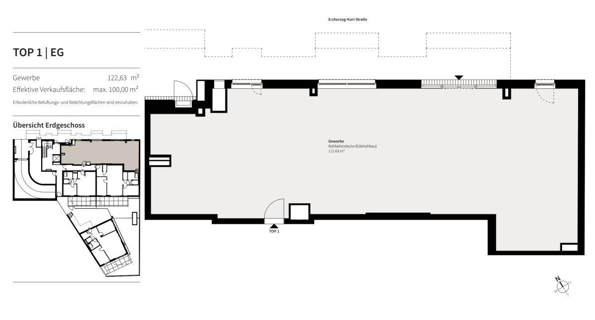
++ NEUE GEWERBEFLÄCHE mit AUSLAGE ++ PROJEKT KARL74
355.000€
121
m²
·
Zimmer
Verlauf
Zuerst gesehen:
7 days ago
auf
Immoscout24
Gefunden
2 days ago
auf
Immoscout24
Gefunden
2 days ago
auf
Willhaben
Ähnliche Anzeigen
1220 ·
Wien
359.000€
3.989€
pro m²
90
m²
·
3
Zimmer
1220 ·
Wien, 22. Bezirk, Donaustadt
1.550.000€
9.509€
pro m²
163
m²
·
4
Zimmer
1220 ·
Wien, 22. Bezirk, Donaustadt
899.000€
9.365€
pro m²
96
m²
·
3
Zimmer
1220 ·
Wien, 22. Bezirk, Donaustadt
139.000€
3.233€
pro m²
43
m²
·
2
Zimmer
1220 ·
Wien, 22. Bezirk, Donaustadt
242.300€
4.751€
pro m²
51
m²
·
1
Zimmer
1220 ·
Wien, 22. Bezirk, Donaustadt
3.499.000€
4.116€
pro m²
850
m²
·
Zimmer