Gefunden auf ImmoBucket
Weiter zu Immoscout24
1150 ·
Wien
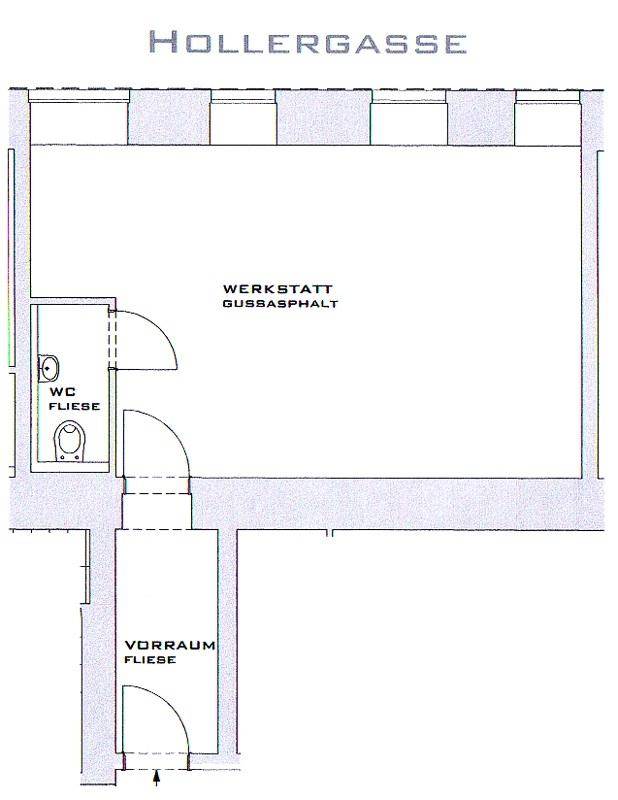
Räumlichkeit mit Werkstattwidmung in der Nähe der Äußeren Mariahilfer Straße gesucht?
49.000€
41
m²
·
Zimmer
Verlauf
Zuerst gesehen:
12 days ago
auf
Immoscout24
Gefunden
8 days ago
auf
Immoscout24
Gefunden
8 days ago
auf
Willhaben
Ähnliche Anzeigen
1150 ·
Wien
649.000€
4.992€
pro m²
130
m²
·
3
Zimmer
1150 ·
Wien
349.000€
5.721€
pro m²
61
m²
·
2
Zimmer
1150 ·
Wien, 15. Bezirk, Rudolfsheim-Fünfhaus
280.000€
3.636€
pro m²
77
m²
·
Zimmer
1150 ·
Wien, 15. Bezirk, Rudolfsheim-Fünfhaus
205.700€
€
m²
·
0
Zimmer
1150 ·
Wien
210.000€
5.250€
pro m²
40
m²
·
2
Zimmer
1150 ·
Wien
339.000€
3.645€
pro m²
93
m²
·
4
Zimmer