Gefunden auf ImmoBucket
Weiter zu Immoscout24
6091 ·
Götzens
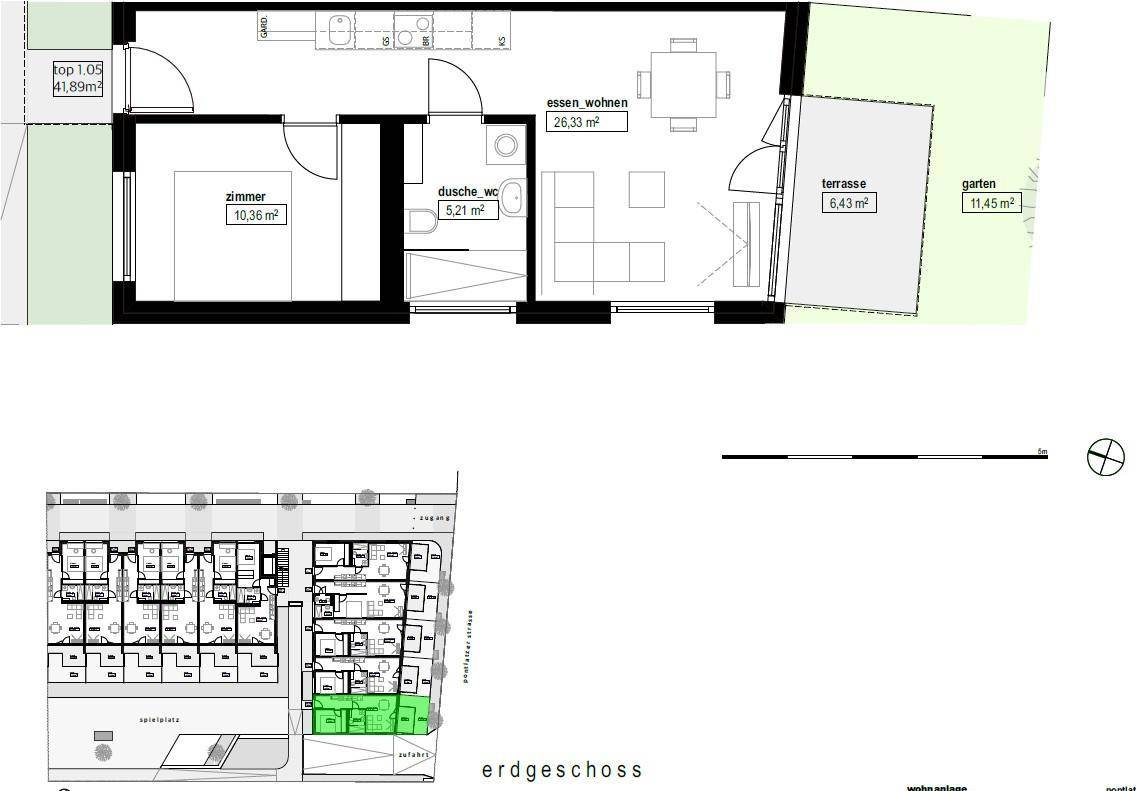
Schöne 2-Zimmer-Wohnung mit Garten, Top 1.05
392.000€
42
m²
·
2
Zimmer
Verlauf
Zuerst gesehen:
about 2 months ago
auf
Immoscout24
Gefunden
about 1 month ago
auf
Immoscout24
Ähnliche Anzeigen
6091 ·
Götzens
460.000€
5.542€
pro m²
83
m²
·
3
Zimmer
6091 ·
Götzens
314.000€
6.280€
pro m²
50
m²
·
2
Zimmer
6091 ·
Götzens
382.000€
8.682€
pro m²
44
m²
·
2
Zimmer
6091 ·
Götzens
392.000€
9.333€
pro m²
42
m²
·
2
Zimmer
6091 ·
Götzens
260.000€
6.341€
pro m²
41
m²
·
2
Zimmer
6091 ·
Götzens
649.940€
6.190€
pro m²
105
m²
·
3
Zimmer