Gefunden auf ImmoBucket
Weiter zu Immoscout24
8020 ·
Graz
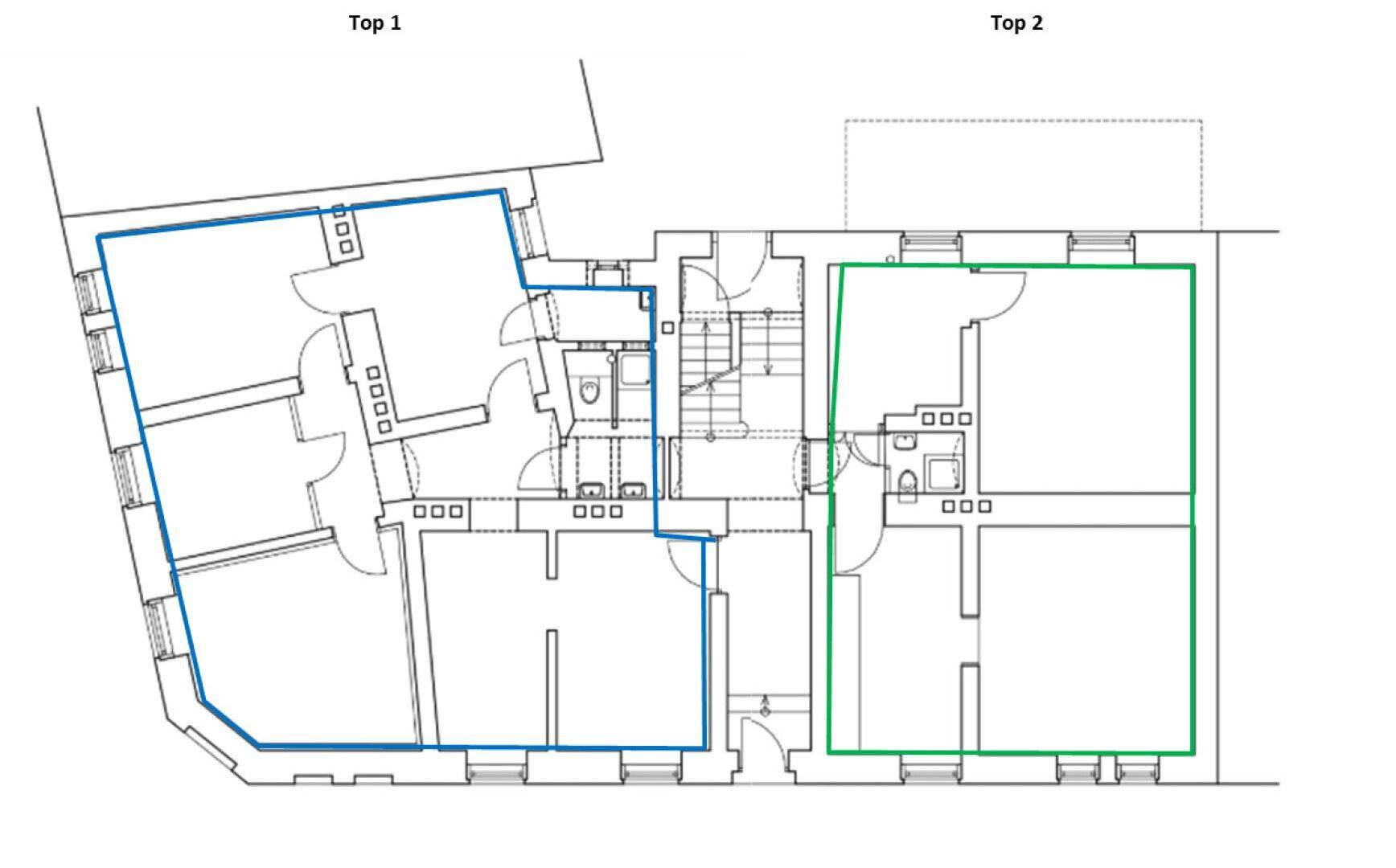
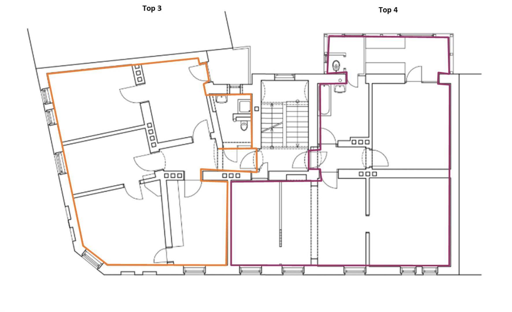
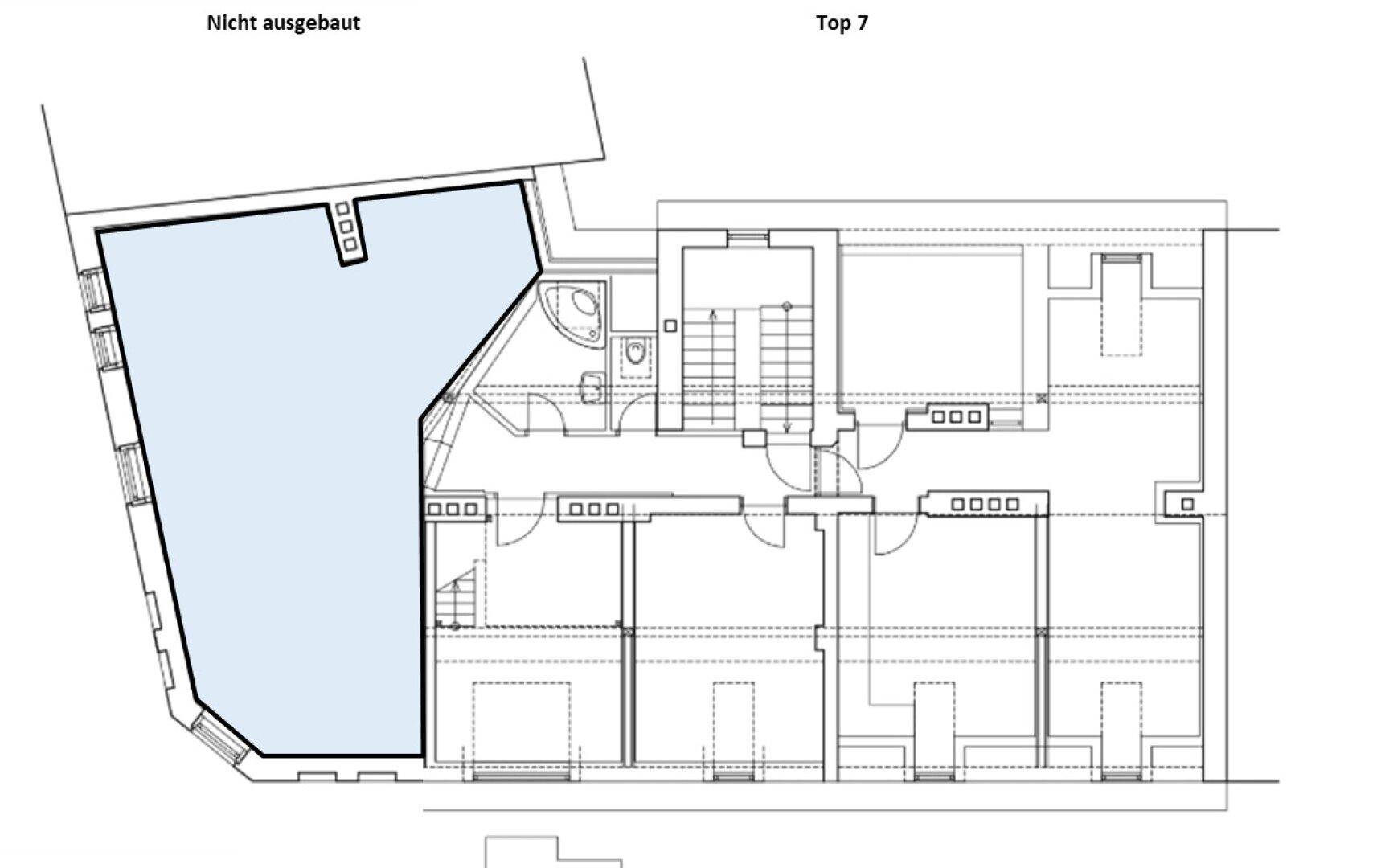
Altbau-Zinshaus mit Ausbaupotenzial – im Paket oder wohnungsweise zu kaufen
1.380.500€
m²
·
Zimmer
Verlauf
Zuerst gesehen:
24 days ago
auf
Immoscout24
Gefunden
2 days ago
auf
Immoscout24
Ähnliche Anzeigen
8020 ·
Gries
179.000€
3.086€
pro m²
58
m²
·
Zimmer
8020 ·
Graz
154.000€
2.800€
pro m²
55
m²
·
2
Zimmer
8020 ·
Lend
136.000€
2.894€
pro m²
47
m²
·
2
Zimmer
8020 ·
Lend
159.000€
2.038€
pro m²
78
m²
·
3
Zimmer
8020 ·
Graz
185.000€
2.126€
pro m²
87
m²
·
Zimmer
8020 ·
Graz
148.000€
2.387€
pro m²
62
m²
·
2
Zimmer