Gefunden auf ImmoBucket
Weiter zu Immoscout24
6500 ·
Landeck
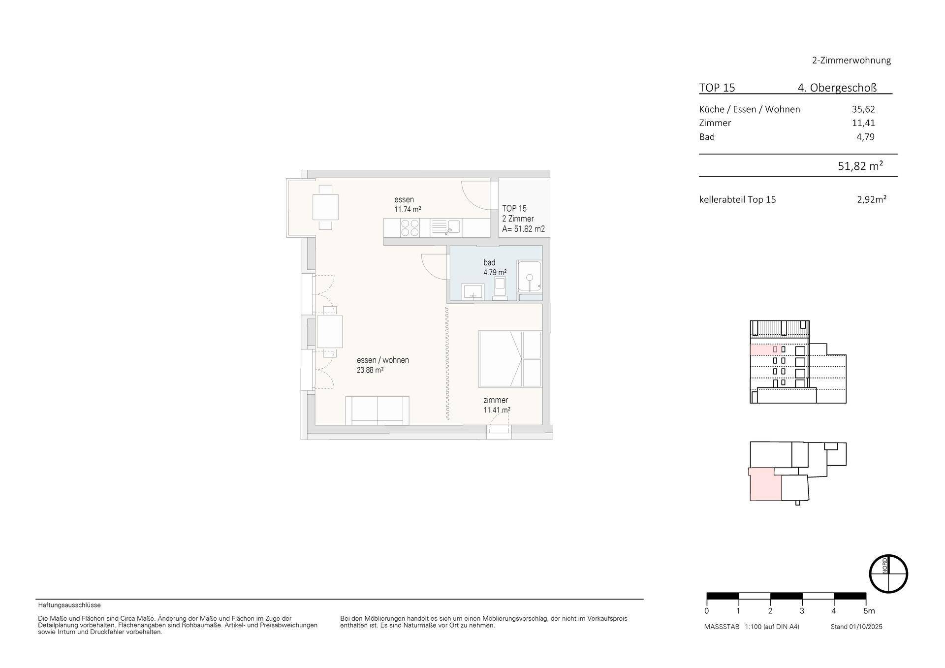
Zentrum Landeck | 2 Zimmer-Wohnung | 51,82 m² | Französische Balkone und Fensternische | 4. OG | Jöchlerhaus (TOP 15)
339.421€
52
m²
·
2
Zimmer
Verlauf
Zuerst gesehen:
about 1 month ago
auf
Immoscout24
Gefunden
2 days ago
auf
Immoscout24
Gefunden
2 days ago
auf
Immoscout24
Ähnliche Anzeigen
6500 ·
Landeck
329.764€
6.222€
pro m²
53
m²
·
2
Zimmer
6500 ·
Landeck
349.841€
6.479€
pro m²
54
m²
·
1
Zimmer
6500 ·
Landeck
299.523€
5.990€
pro m²
50
m²
·
Zimmer
6500 ·
Landeck
519.552€
4.479€
pro m²
116
m²
·
Zimmer
6500 ·
Landeck
572.523€
3.976€
pro m²
144
m²
·
Zimmer
6500 ·
Landeck
No price
€
m²
·
Zimmer