Gefunden auf ImmoBucket
Weiter zu Immoscout24
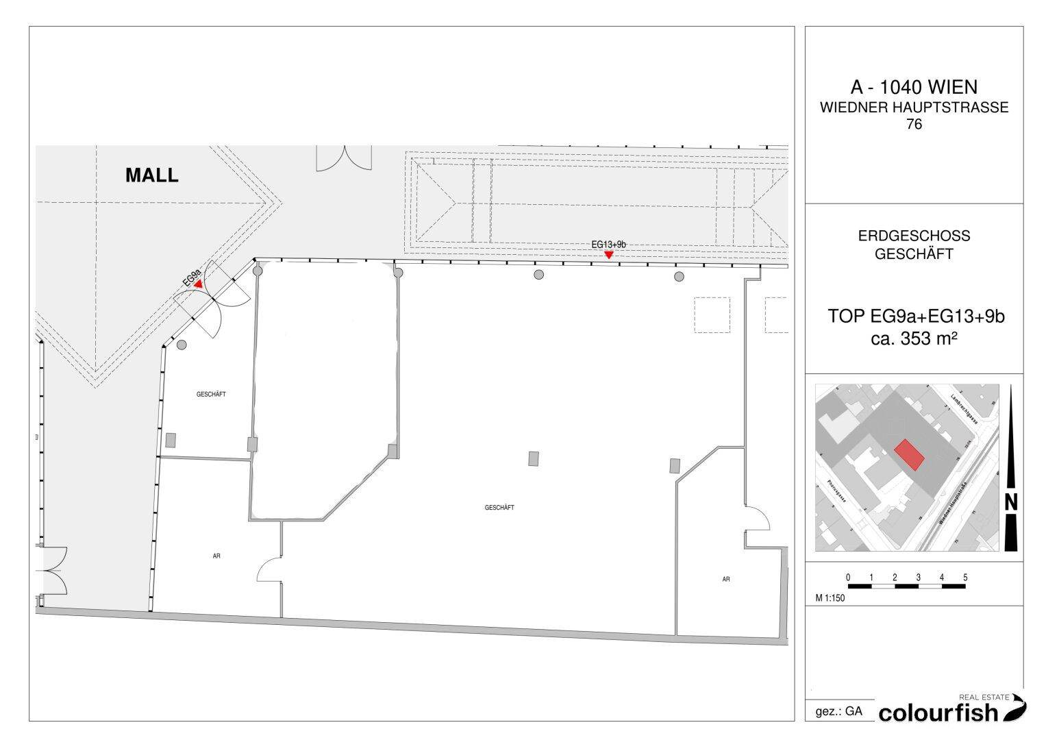
1040 ·
Wien
Galerie Wieden - Geschäftsflächen mit guter Sichtbarkeit
9.870€
658
m²
·
Zimmer
Verlauf
Zuerst gesehen:
about 2 months ago
auf
Immoscout24
Gefunden
about 2 months ago
auf
Immoscout24
Gefunden
about 2 months ago
auf
Willhaben
Ähnliche Anzeigen
1040 ·
Wien
1.675€
19€
pro m²
90
m²
·
2
Zimmer
1040 ·
Wien, 04. Bezirk, Wieden
1.848,96€
26€
pro m²
70
m²
·
2
Zimmer
1040 ·
Wien
1.925€
28€
pro m²
70
m²
·
2
Zimmer
1040 ·
Wien, 04. Bezirk, Wieden
1.585€
24€
pro m²
66
m²
·
3
Zimmer
1040 ·
Wien, 04. Bezirk, Wieden
1.950€
21€
pro m²
95
m²
·
3
Zimmer
1040 ·
Wien, 04. Bezirk, Wieden
12.008,79€
22€
pro m²
556
m²
·
Zimmer