Gefunden auf ImmoBucket
Weiter zu Immoscout24
6252 ·
Breitenbach am Inn
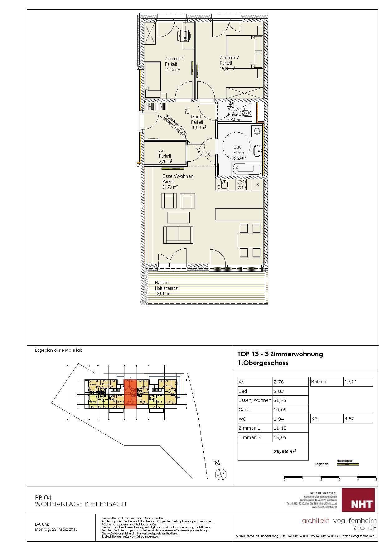
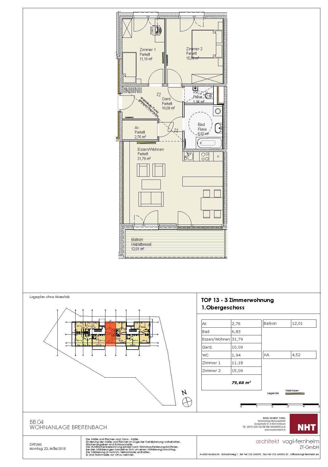
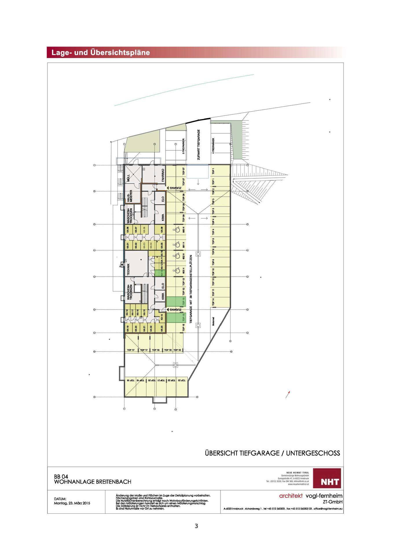
Neuwertige 3-Zimmer Wohnung mit Balkon und 2 Tiefgaragenplätzen
475.000€
80
m²
·
3
Zimmer
Verlauf
Zuerst gesehen:
about 2 months ago
auf
Immoscout24
Gefunden
about 2 months ago
auf
Immoscout24
gelöscht
Gefunden
19 days ago
auf
Immoscout24
Ähnliche Anzeigen
6252 ·
Breitenbach am Inn
415.000€
3.807€
pro m²
109
m²
·
4
Zimmer
6252 ·
Breitenbach am Inn
495.000€
6.188€
pro m²
80
m²
·
3
Zimmer
6252 ·
Breitenbach am Inn
475.000€
5.938€
pro m²
80
m²
·
3
Zimmer
6252 ·
Breitenbach am Inn
1.400.000€
€
m²
·
Zimmer