Gefunden auf ImmoBucket
Weiter zu Immoscout24
6533 ·
Fiss
Modernes Wohnen in Fiss: Erstbezug mit Tiefgarage!
676.752€
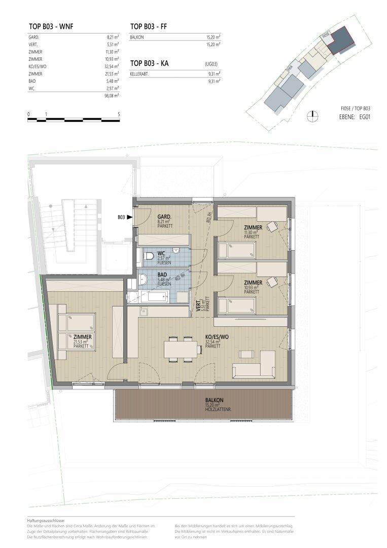
98
m²
·
Zimmer
Verlauf
Zuerst gesehen:
3 months ago
auf
Immoscout24
Gefunden
about 2 months ago
auf
Willhaben
gelöscht
Gefunden
about 2 months ago
auf
Immoscout24
Gefunden
about 1 month ago
auf
Willhaben
gelöscht
Ähnliche Anzeigen
6533 ·
Fiss
671.301€
6.921€
pro m²
97
m²
·
4
Zimmer
6533 ·
Fiss
676.752€
6.906€
pro m²
98
m²
·
Zimmer
6533 ·
Fiss
429.000€
9.128€
pro m²
47
m²
·
2
Zimmer
6533 ·
Fiss
790.000€
9.753€
pro m²
81
m²
·
3
Zimmer
6533 ·
Fiss
635.000€
9.621€
pro m²
66
m²
·
3
Zimmer