Gefunden auf ImmoBucket
Weiter zu Immoscout24
1160 ·
Wien
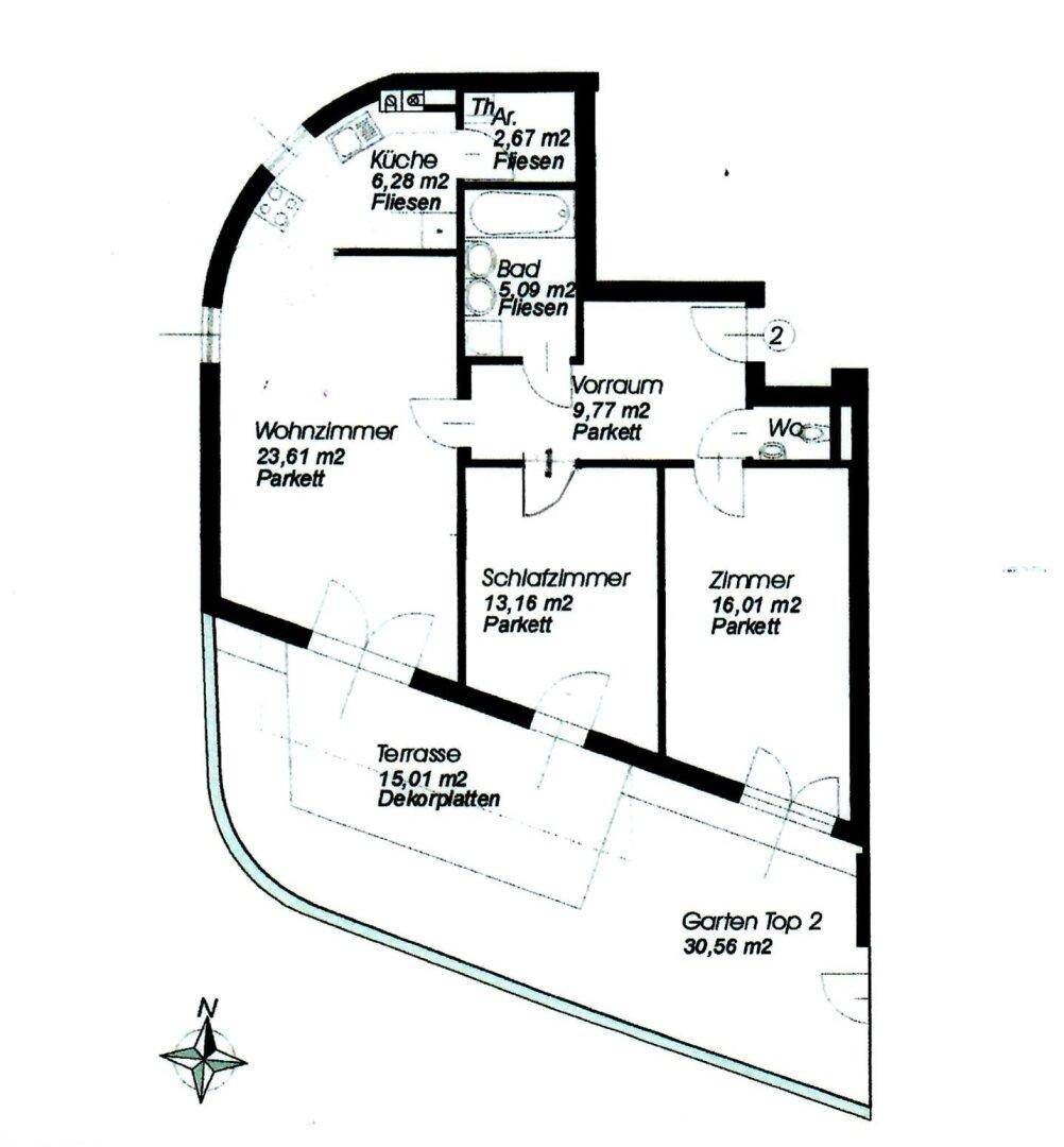
Barrierefreie 3-Zimmer-Gartenwohnung am Wilhelminenberg!
450.000€
78
m²
·
Zimmer
Verlauf
Zuerst gesehen:
about 2 months ago
auf
Immoscout24
Gefunden
about 2 months ago
auf
Immoscout24
gelöscht
Gefunden
about 1 month ago
auf
Immoscout24
Gefunden
about 1 month ago
auf
Willhaben
Gefunden
about 2 months ago
auf
Willhaben
gelöscht
Ähnliche Anzeigen
1160 ·
Wien, 16. Bezirk, Ottakring
949.000€
2.137€
pro m²
444
m²
·
Zimmer
1160 ·
Wien,Ottakring
140.000€
4.667€
pro m²
30
m²
·
Zimmer
1160 ·
Wien, 16. Bezirk, Ottakring
540.000€
7.606€
pro m²
71
m²
·
3
Zimmer
1160 ·
Wien, 16. Bezirk, Ottakring
289.900€
€
m²
·
0
Zimmer
1160 ·
Wien, 16. Bezirk, Ottakring
1.200.000€
10.619€
pro m²
113
m²
·
4
Zimmer
1160 ·
Wien, 16. Bezirk, Ottakring
135.000€
3.649€
pro m²
37
m²
·
1
Zimmer