4840 · Vöcklabruck

Zentral & mit XL-Terrasse – Renovierte 3-Zimmer-Wohnung mit viel Potenzial in Vöcklabruck

189.000€
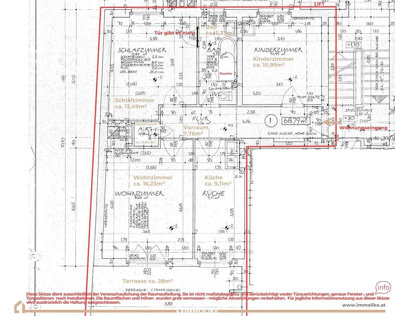
64 · 3 Zimmer
otherotherotherotherotherotherotherotherotherotherotherotherother

Verlauf

Zuerst gesehen: about 20 hours ago auf Immoscout24
Gefunden about 18 hours ago auf Immoscout24
Gefunden about 18 hours ago auf Willhaben

Ähnliche Anzeigen