Gefunden auf ImmoBucket
Weiter zu Immoscout24
2723 ·
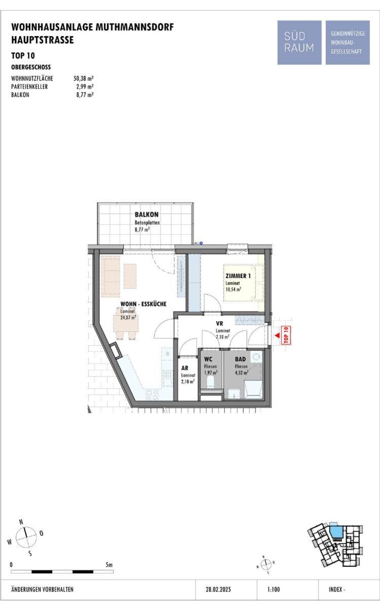
Muthmannsdorf
Kompakte Eckwohnung mit Balkon im 1.Obergeschoß
833€
72
m²
·
3
Zimmer
Verlauf
Zuerst gesehen:
about 1 hour ago
auf
Immoscout24
Gefunden
about 1 hour ago
auf
Immoscout24
Gefunden
34 minutes ago
auf
Willhaben
Ähnliche Anzeigen
2723 ·
Muthmannsdorf
833€
12€
pro m²
72
m²
·
3
Zimmer
2723 ·
Muthmannsdorf
628€
12€
pro m²
52
m²
·
2
Zimmer