Gefunden auf ImmoBucket
Weiter zu Immoscout24
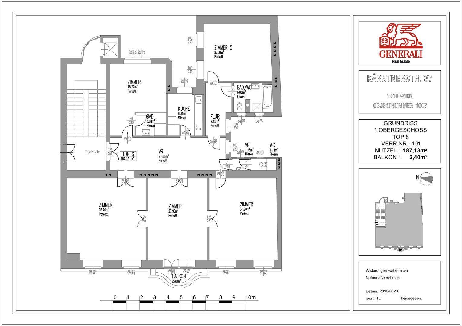
1010 ·
Wien
UNBEFRISTET: Traumhafte Altbauwohnung in prominenter Lage
4.997€
187
m²
·
5
Zimmer
Verlauf
Zuerst gesehen:
about 12 hours ago
auf
Immoscout24
Gefunden
about 11 hours ago
auf
Immoscout24
Ähnliche Anzeigen
1010 ·
Wien, 01. Bezirk, Innere Stadt
8.305,63€
32€
pro m²
257
m²
·
Zimmer
1010 ·
Wien, 01. Bezirk, Innere Stadt
2.050€
27€
pro m²
75
m²
·
4
Zimmer
1010 ·
Wien, 01. Bezirk, Innere Stadt
1.393,15€
32€
pro m²
43
m²
·
Zimmer
1010 ·
Wien, 01. Bezirk, Innere Stadt
4.745,86€
25€
pro m²
187
m²
·
5
Zimmer
1010 ·
Wien
4.997€
27€
pro m²
187
m²
·
5
Zimmer
1010 ·
Wien, 01. Bezirk, Innere Stadt
8.305,63€
32€
pro m²
258
m²
·
Zimmer