Gefunden auf ImmoBucket
Weiter zu Immoscout24
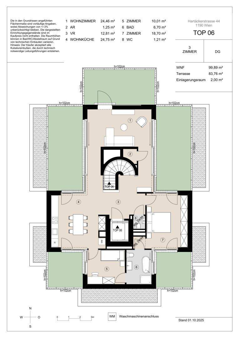
1190 ·
Wien
h(e)artpieces - Penthouse - jedes Zimmer hat eine eigene Terrasse
1.600.000€
100
m²
·
3
Zimmer
Verlauf
Zuerst gesehen:
about 5 hours ago
auf
Immoscout24
Gefunden
about 5 hours ago
auf
Immoscout24
Gefunden
about 5 hours ago
auf
Willhaben
gelöscht
Ähnliche Anzeigen
1190 ·
Wien
1.600.000€
16.000€
pro m²
100
m²
·
3
Zimmer
1190 ·
Wien
1.187.000€
14.476€
pro m²
82
m²
·
3
Zimmer
1190 ·
Wien
1.030.000€
13.205€
pro m²
78
m²
·
3
Zimmer
1190 ·
Wien
1.175.000€
14.329€
pro m²
82
m²
·
3
Zimmer
1190 ·
Wien, 19. Bezirk, Döbling
380.000€
4.750€
pro m²
80
m²
·
3
Zimmer
1190 ·
Wien, 19. Bezirk, Döbling
No price
€
m²
·
Zimmer