Gefunden auf ImmoBucket
Weiter zu Immoscout24
2301 ·
Groß-Enzersdorf
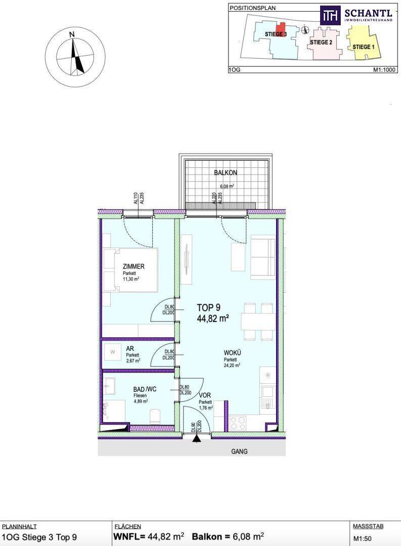
Attraktive 2 Zimmer Wohnung als Investment mit nachhaltigem Vermietungspotenzial! Ab Q3/26
239.120€
45
m²
·
2
Zimmer
Verlauf
Zuerst gesehen:
about 5 hours ago
auf
Immoscout24
Gefunden
about 5 hours ago
auf
Willhaben
gelöscht
Gefunden
about 5 hours ago
auf
Immoscout24
Ähnliche Anzeigen
2301 ·
Groß-Enzersdorf
No price
€
m²
·
Zimmer
2301 ·
Groß-Enzersdorf
920.000€
6.093€
pro m²
151
m²
·
6
Zimmer
2301 ·
Groß-Enzersdorf
259.000€
€
m²
·
4
Zimmer
2301 ·
Groß-Enzersdorf
340.000€
3.736€
pro m²
91
m²
·
4
Zimmer
2301 ·
Groß-Enzersdorf
13.000.000€
1.353€
pro m²
9610
m²
·
Zimmer
2301 ·
Groß-Enzersdorf
160.200€
3.204€
pro m²
50
m²
·
2
Zimmer