Gefunden auf ImmoBucket
Weiter zu Immoscout24
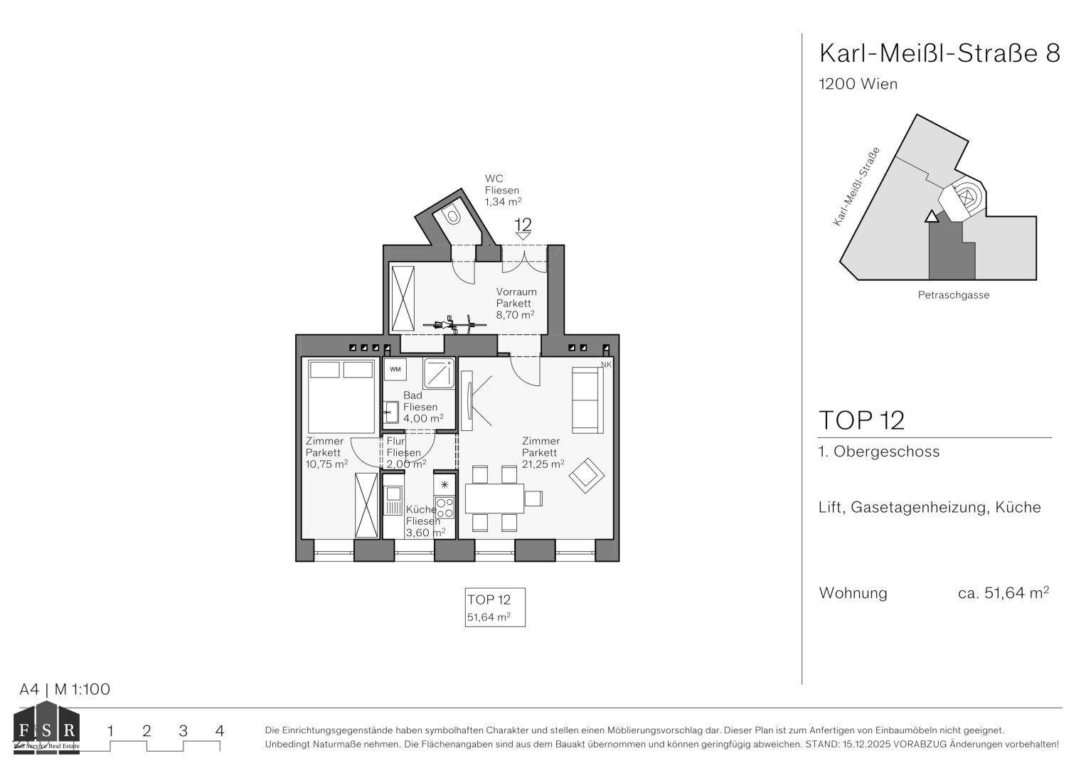
1200 ·
Wien
Steinwurf zum Augarten - Schöne, helle 2 Zimmer Altbauwohnung im 2. Liftstock - Prachtvolles Stilaltbauhaus
325.000€
51
m²
·
2
Zimmer
Verlauf
Zuerst gesehen:
about 11 hours ago
auf
Immoscout24
Gefunden
about 11 hours ago
auf
Immoscout24
Gefunden
about 11 hours ago
auf
Willhaben
Ähnliche Anzeigen
1200 ·
Wien
325.000€
6.373€
pro m²
51
m²
·
2
Zimmer
1200 ·
Wien, 20. Bezirk, Brigittenau
235.060€
€
m²
·
0
Zimmer
1200 ·
Wien, 20. Bezirk, Brigittenau
419.000€
4.411€
pro m²
95
m²
·
3
Zimmer
1200 ·
Wien, 20. Bezirk, Brigittenau
255.000€
3.984€
pro m²
64
m²
·
3
Zimmer
1200 ·
Wien, 20. Bezirk, Brigittenau
229.000€
3.754€
pro m²
61
m²
·
2
Zimmer
1200 ·
Wien
999.000€
7.929€
pro m²
126
m²
·
4
Zimmer