Gefunden auf ImmoBucket
Weiter zu Immoscout24
8623 ·
Aflenz Kurort
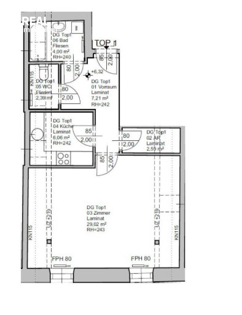
Wohnen mit Lebensqualität – 1-Zimmer-Wohnung in Aflenz Kurort
530€
51
m²
·
1
Zimmer
Verlauf
Zuerst gesehen:
about 2 months ago
auf
Immoscout24
Gefunden
about 2 months ago
auf
Immoscout24
Ähnliche Anzeigen
8623 ·
Aflenz Kurort
738,95€
10€
pro m²
77
m²
·
2
Zimmer
8623 ·
Aflenz Kurort
740€
10€
pro m²
72
m²
·
0
Zimmer
8623 ·
Aflenz Kurort
530€
10€
pro m²
51
m²
·
1
Zimmer
8623 ·
Aflenz Kurort
450€
9€
pro m²
51
m²
·
2
Zimmer
8623 ·
Aflenz Kurort
950€
9€
pro m²
103
m²
·
4
Zimmer
8623 ·
Aflenz Kurort
534,01€
14€
pro m²
38
m²
·
2
Zimmer