Gefunden auf ImmoBucket
Weiter zu Immoscout24
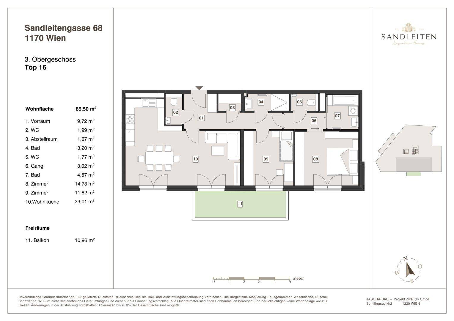
1170 ·
Wien,Hernals
Wohnen auf großem Fuß: Exklusive 3-Zimmer-Wohnung mit spektakulärem Balkon
769.000€
86
m²
·
3
Zimmer
Verlauf
Zuerst gesehen:
about 10 hours ago
auf
Immoscout24
Gefunden
about 10 hours ago
auf
Immoscout24
Ähnliche Anzeigen
1170 ·
Wien, 17. Bezirk, Hernals
349.000€
€
m²
·
0
Zimmer
1170 ·
Wien,Hernals
489.000€
8.579€
pro m²
57
m²
·
2
Zimmer
1170 ·
Wien,Hernals
1.390.000€
11.583€
pro m²
120
m²
·
4
Zimmer
1170 ·
Wien,Hernals
569.000€
7.113€
pro m²
80
m²
·
4
Zimmer
1170 ·
Wien,Hernals
1.633.000€
12.562€
pro m²
130
m²
·
3
Zimmer
1170 ·
Wien,Hernals
439.000€
8.130€
pro m²
54
m²
·
2
Zimmer