Gefunden auf ImmoBucket
Weiter zu Immoscout24
5592 ·
Thomatal
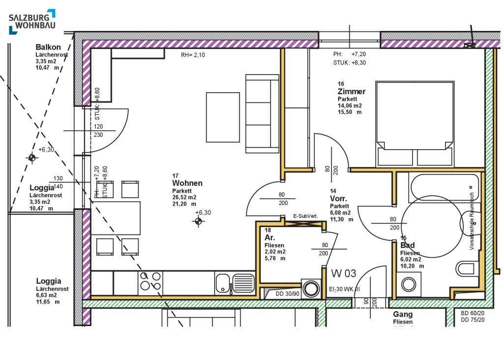
WOHLFÜHLEN! Geförderte 2-Zimmerwohnung mit Balkon und Carportplatz in Thomatal! Hoher Wohnbeihilfe = Mietenreduktion
534€
55
m²
·
2
Zimmer
Verlauf
Zuerst gesehen:
3 days ago
auf
Immoscout24
Gefunden
3 days ago
auf
Immoscout24
Gefunden
3 days ago
auf
Willhaben
Ähnliche Anzeigen
5592 ·
Thomatal
534€
10€
pro m²
55
m²
·
2
Zimmer
5592 ·
Thomatal
712€
10€
pro m²
73
m²
·
3
Zimmer