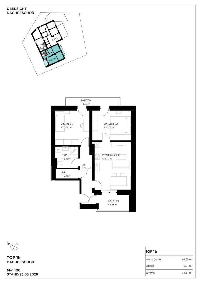
8785 · Hohentauern

Appartement in den Bergen – ruhig, modern, besonders

239.000€
61 · 3 Zimmer
otherotherotherotherotherotherotherotherotherotherotherotherotherother

Verlauf

Zuerst gesehen: about 12 hours ago auf Immoscout24
Gefunden about 8 hours ago auf Immoscout24

Ähnliche Anzeigen