Gefunden auf ImmoBucket
Weiter zu Immoscout24
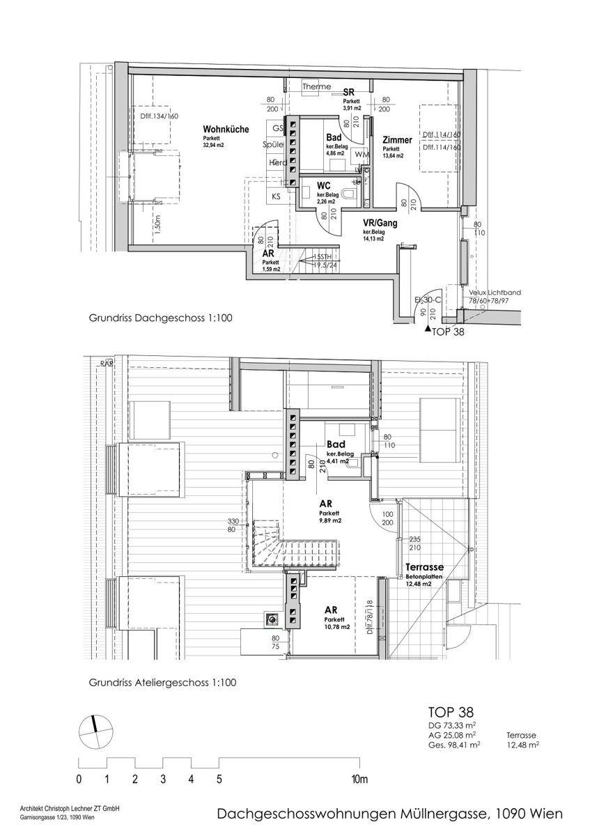
1090 ·
Wien
Klimatisierte DG-Maisonette mit Terrasse im Servitenviertel
2.018€
98
m²
·
3
Zimmer
Verlauf
Zuerst gesehen:
about 8 hours ago
auf
Immoscout24
Gefunden
about 7 hours ago
auf
Willhaben
gelöscht
Gefunden
about 8 hours ago
auf
Immoscout24
Ähnliche Anzeigen
1090 ·
Wien
2.018€
21€
pro m²
98
m²
·
3
Zimmer
1090 ·
Wien
895€
28€
pro m²
32
m²
·
1
Zimmer
1090 ·
Wien, 09. Bezirk, Alsergrund
842,91€
26€
pro m²
32
m²
·
1
Zimmer
1090 ·
Wien, 09. Bezirk, Alsergrund
2.328,55€
22€
pro m²
106
m²
·
3
Zimmer
1090 ·
Wien
1.489€
21€
pro m²
70
m²
·
3
Zimmer
1090 ·
Wien, 09. Bezirk, Alsergrund
1.370€
19€
pro m²
73
m²
·
2
Zimmer