Gefunden auf ImmoBucket
Weiter zu Immoscout24
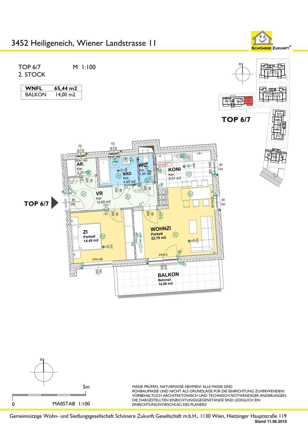
3452 ·
Heiligeneich
2-Zimmerwohnung mit Balkon in Heiligeneich! Wohnzuschuss möglich!
999€
66
m²
·
2
Zimmer
Verlauf
Zuerst gesehen:
10 months ago
auf
Immoscout24
Gefunden
10 months ago
auf
Immoscout24
Gefunden
10 months ago
auf
Willhaben
gelöscht
Ähnliche Anzeigen
3452 ·
Hankenfeld
890€
11€
pro m²
80
m²
·
3
Zimmer
3452 ·
Heiligeneich
1.148€
15€
pro m²
76
m²
·
3
Zimmer
3452 ·
Atzenbrugg
4.100€
5€
pro m²
800
m²
·
Zimmer
3452 ·
Heiligeneich
999€
15€
pro m²
66
m²
·
2
Zimmer
3452 ·
Heiligeneich
1.324€
14€
pro m²
92
m²
·
4
Zimmer