Gefunden auf ImmoBucket
Weiter zu Immoscout24
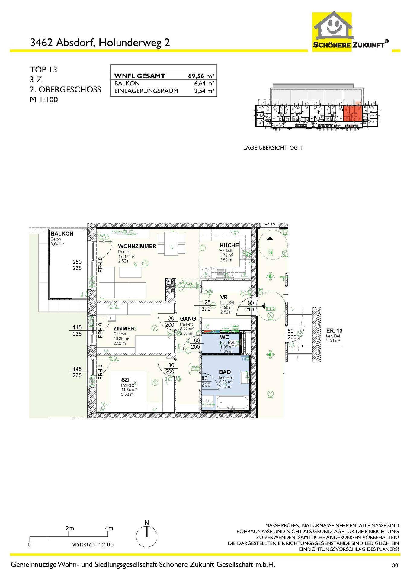
3462 ·
Absdorf
Neubau! Geförderte 3 Zimmerwohnung mit Balkon in Absdorf!
824€
70
m²
·
3
Zimmer
Verlauf
Zuerst gesehen:
9 months ago
auf
Immoscout24
Gefunden
9 months ago
auf
Immoscout24
Gefunden
9 months ago
auf
Willhaben
Ähnliche Anzeigen
3462 ·
Absdorf
833€
10€
pro m²
81
m²
·
4
Zimmer
3462 ·
Absdorf
1.250€
12€
pro m²
107
m²
·
3
Zimmer
3462 ·
Absdorf
1.625€
9€
pro m²
180
m²
·
Zimmer
3462 ·
Absdorf
900€
10€
pro m²
86
m²
·
4
Zimmer
3462 ·
Absdorf
1.459,97€
€
m²
·
0
Zimmer
3462 ·
Absdorf
824€
12€
pro m²
70
m²
·
3
Zimmer