Gefunden auf ImmoBucket
Weiter zu Immoscout24
4982 ·
Obernberg am Inn
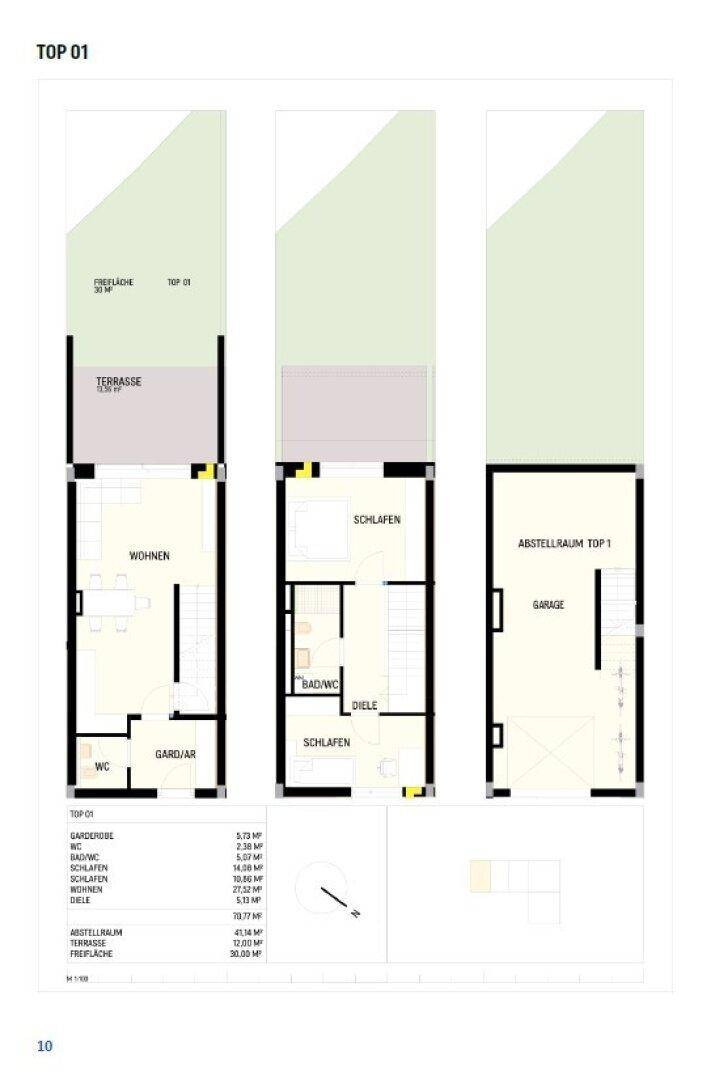
Gut vermietete Erstbezugs-Maisonettewohnung mit überdachter Terrasse und Garage
323.300€
71
m²
·
3
Zimmer
Verlauf
Zuerst gesehen:
6 months ago
auf
Immoscout24
Gefunden
5 months ago
auf
Willhaben
gelöscht
Gefunden
5 months ago
auf
Immoscout24
gelöscht
Gefunden
3 months ago
auf
Immoscout24
Ähnliche Anzeigen
4982 ·
Obernberg am Inn
189.000€
3.098€
pro m²
61
m²
·
0
Zimmer
4982 ·
Obernberg am Inn
323.300€
4.554€
pro m²
71
m²
·
3
Zimmer
4982 ·
Obernberg am Inn
369.100€
4.194€
pro m²
88
m²
·
3
Zimmer
4982 ·
Obernberg am Inn
374.700€
4.118€
pro m²
91
m²
·
4
Zimmer
4982 ·
Obernberg am Inn
289.000€
1.389€
pro m²
208
m²
·
Zimmer
4982 ·
Obernberg am Inn
198.000€
3.414€
pro m²
58
m²
·
2
Zimmer