Gefunden auf ImmoBucket
Weiter zu Immoscout24
3943 ·
Schrems
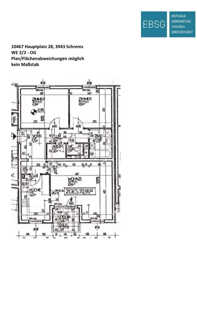
3-Zimmerwohnung im 1.OG
503€
71
m²
·
3
Zimmer
Verlauf
Zuerst gesehen:
2 months ago
auf
Immoscout24
Gefunden
about 2 months ago
auf
Immoscout24
Ähnliche Anzeigen
3943 ·
Schrems
No price
€
93
m²
·
Zimmer
3943 ·
Schrems
694€
13€
pro m²
53
m²
·
Zimmer
3943 ·
Schrems
1.200€
8€
pro m²
150
m²
·
6
Zimmer
3943 ·
Schrems
635€
8€
pro m²
77
m²
·
3
Zimmer
3943 ·
Schrems
503€
7€
pro m²
71
m²
·
3
Zimmer
3943 ·
Schrems
503€
7€
pro m²
71
m²
·
3
Zimmer