Gefunden auf ImmoBucket
Weiter zu Immoscout24
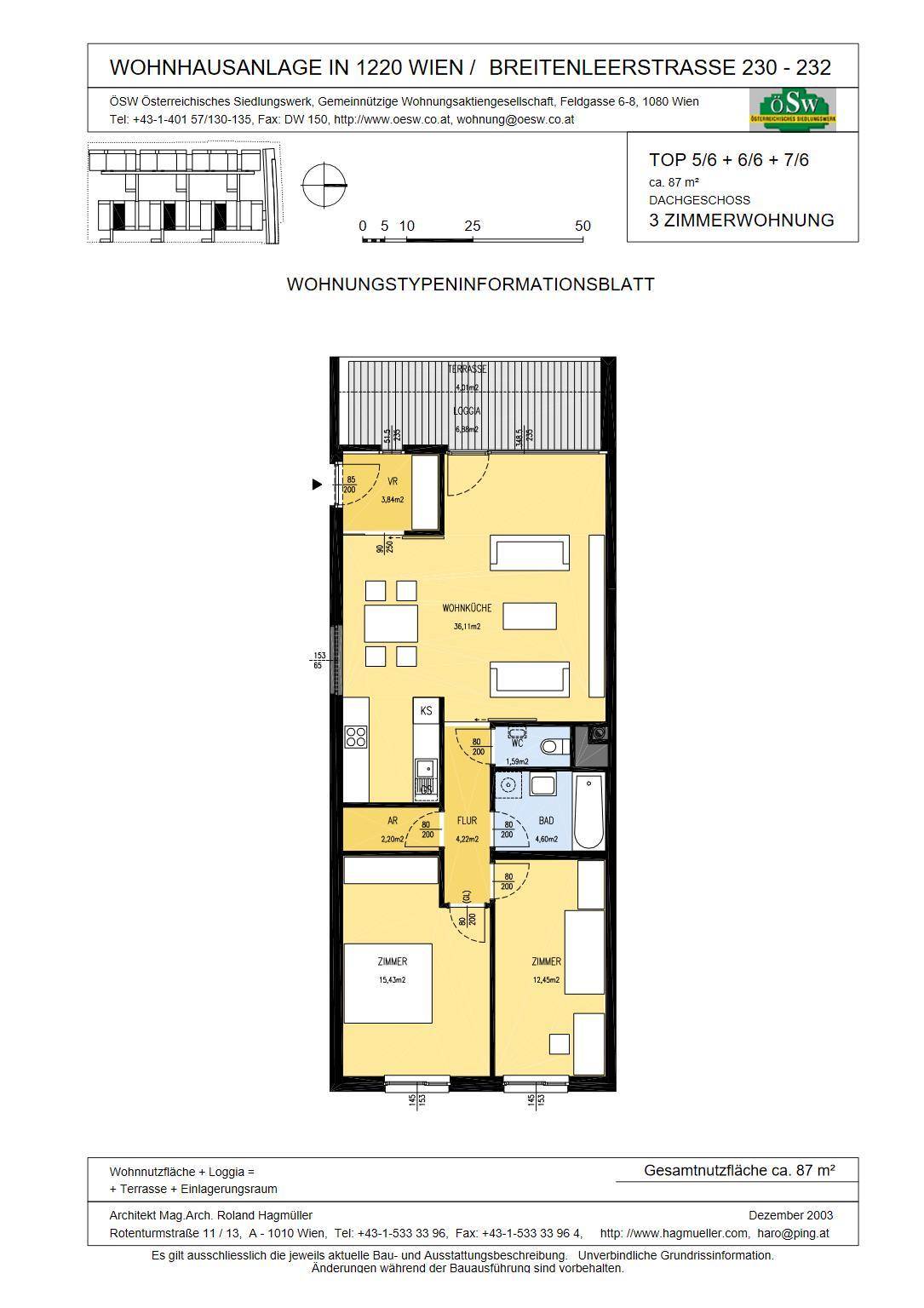
1220 ·
Wien
Familienidylle in Hirschstetten
849€
87
m²
·
3
Zimmer
Verlauf
Zuerst gesehen:
about 5 hours ago
auf
Immoscout24
Gefunden
about 2 hours ago
auf
Immoscout24
Ähnliche Anzeigen
1220 ·
Wien
849€
10€
pro m²
87
m²
·
3
Zimmer
1220 ·
Wien, 22. Bezirk, Donaustadt
3.437,77€
16€
pro m²
214
m²
·
Zimmer
1220 ·
Wien, 22. Bezirk, Donaustadt
650€
38€
pro m²
17
m²
·
1
Zimmer
1220 ·
Wien
1.248€
22€
pro m²
57
m²
·
2
Zimmer
1220 ·
Wien, 22. Bezirk, Donaustadt
600€
40€
pro m²
15
m²
·
1
Zimmer
1220 ·
Wien, 22. Bezirk, Donaustadt
1.390€
25€
pro m²
56
m²
·
2
Zimmer